Id 159317

пос.Рязановское, ул.Алхимовская, 1к4 ЖК АЛХИМОВО – 83,6 М2 / АРЕНДА ПСН

адрес Алхимовская улица, 1к4

С отдельным входом
Торговая
Общепит
Жилой комплекс (мфк)

209 000 RUB | в месяц

(за 1 м2 — 2 500 RUB)

площадь 83.6 м2

QR код Qr код

В аренду предлагается помещение свободного назначения 83,6 м2, расположенное в современном ЖК «Алхимово», по адресу: пос.Рязановское, ул.Алхимовская, 1к4 ЖК АЛХИМОВО. Остановка общественного транспорта: Берёзки (740 м), железнодорожная станция Силикатнаят (2,53 км), метро Бунинская аллея 15 минут на транспорте. Благоприятный район. Заселены 90 %. Помещение угловое, рядом плейхаб и детский сад как точка притяжения. Отличный рекламный потенциал и визуализация объекта. Развитая инфраструктура.

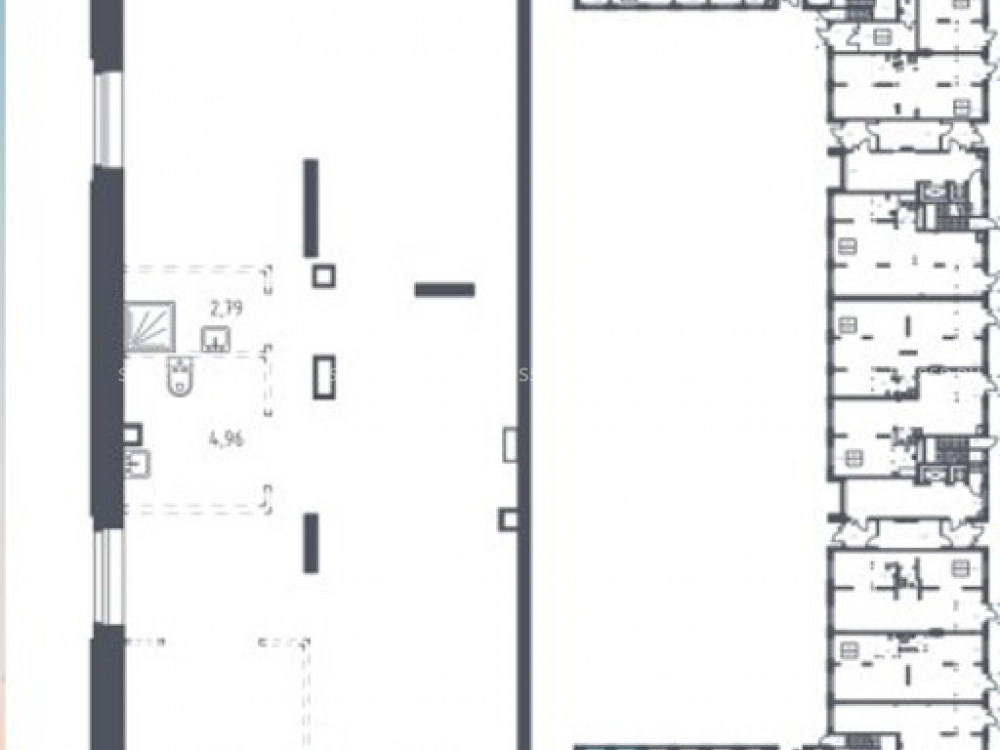
Технические характеристики: Помещение угловое, площадью 83,6 кв. м., 1 этаж. Отдельный вход. Свободная планировка. Большие витринные окна. Электрическая мощность: 15 кВт. Центральные коммуникации. Потолок 4м. Рядом с помещением парковка. Сдан, ключи получены.

Коммерческие условия:
Ставка аренды: 209 000 рублей в месяц.
Ставка за 1 кв. м. в месяц: 2 500 рублей.
Ставка за 1 кв. м. в год: 30 000 рублей.
Предоставляется возможность арендных каникул на время ремонта.
Обеспечительный платеж в размере 1 месяца аренды.
Коммунальные платежи оплачиваются отдельно, по счетам.

Технические характеристики

Тип здания: С отдельным входом,Торговая,Общепит,Жилой комплекс (мфк)

Общая площадь: 83.6  м2

Этаж: 1

Всего этажей: 13

Электрическая мощность: 15

Высота потолков: 4

Парковка: на улице

Коммерческие условия

Цена в месяц: 209 000 RUB

ФОРМА ВЛАДЕНИЯ: собственность

карта

Расположение

Адрес: Алхимовская улица, 1к4

Близость метро: Остафьево

Транспортная доступность: метро

Окружение

Торговое окружение: развитое

Адрес:

Алхимовская улица, 1к4

Округ:

Близость метро:

Остафьево

Транспортная доступность:

метро

карта

Торговое окружение:

развитое

Общая площадь:

83.6  м2

Этаж:

1

Всего этажей:

13

Тип:

С отдельным входом,Торговая,Общепит,Жилой комплекс (мфк)

Электрическая мощность:

15

Высота потолков:

4

Парковка:

на улице

ФОРМА ВЛАДЕНИЯ:

собственность

Цена в месяц:

209 000 RUB

Планировка

Романов Роман

Ваш брокер по работе с клиентами

Найдите лучшее место
для жизни, бизнеса, инвестиций

Оставьте свои контакты — с вами свяжется руководитель отдела для презентации нужного вам объекта

Похожие объекты