Id 159229

улица Лестева, 21 корп 2 - 213.8 М2 / Продажа помещения с Арендатором

адрес Москва, улица Лестева, 21к2

Арендный бизнес
Многофункциональный
Торговая
Офис
Склад

Окупаемость: 8.4 лет

Доходность:11.88%

35 000 000 RUB | за все

(за 1 м2 — 164 319 RUB)

площадь 213.0 м2

QR код Qr код

Продажа помещения свободного назначения на цокольном этаже по адресу: улица Лестева 21 корп 2, в пешей доступности от метро Шаболовская. Густонаселенный жилой массив, плотная застройка. Подойдет под любую коммерческую деятельность, готовое помещение с ремонтом.

Технические характеристики:
- Цокольный этаж 5-этажного жилого дома;
- Два отдельных входа;
- высота потолков - 2,7 метров;
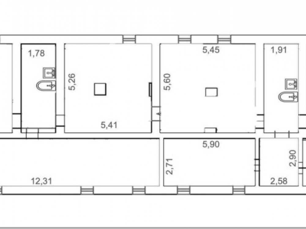
-Площадь помещения: 213.8 м².
- Электрическая мощность - 15 кВт.
- Парковка на улице.

Транспортная доступность:
- метро Шаболовская 6 минут пешком.

Коммерческие условия:
Стоимость - 35 000 000 рублей;
Стоимость за 1 м2 - 163 704 рублей;
Арендатор - Сервисный центр;
МАП - 350 000 рублей; ГАП - 4 200 000;
Окупаемость - 8,3 лет; Ежегодная индексация - 7%;

Технические характеристики

Тип здания: Арендный бизнес,Многофункциональный,Торговая,Офис,Склад

Общая площадь: 213  м2

Этаж: 1

Всего этажей: 6

Электрическая мощность: 15

Высота потолков: 2.7

Парковка: на улице

Коммерческие условия

Цена за все: 35 000 000 RUB

ФОРМА ВЛАДЕНИЯ: собственность

Общий МАП: 350 000 RUB (данный МАП является минимальным, при оптимизации арендаторов арендный поток можно значительно увеличить)

Общий ГАП: 4 200 000 RUB

Окупаемость: 8.4 лет

Доходность: 11.88%

карта

Расположение

Адрес: Москва, улица Лестева, 21к2

Округ: Центральный административный округ

Близость метро: Тульская,Шаболовская

Транспортная доступность: метро Шаболовская мин.

Окружение

Торговое окружение: Аптека, Азбука дейли, Кенгуру, Лента и пр.

Адрес:

Москва, улица Лестева, 21к2

Округ:

Центральный административный округ

Близость метро:

Тульская,Шаболовская

Транспортная доступность:

метро Шаболовская мин.

карта

Торговое окружение:

Аптека, Азбука дейли, Кенгуру, Лента и пр.

Общая площадь:

213  м2

Этаж:

1

Всего этажей:

6

Тип:

Арендный бизнес,Многофункциональный,Торговая,Офис,Склад

Электрическая мощность:

15

Высота потолков:

2.7

Парковка:

на улице

ФОРМА ВЛАДЕНИЯ:

собственность

Цена за все:

35 000 000 RUB

Общий МАП: 350 000

(данный МАП является минимальным, при оптимизации арендаторов арендный поток можно значительно увеличить)

Общий ГАП:

4 200 000

Окупаемость:

8.4 лет

Доходность:

11.88%

Планировка

Олеся Шайхисламова

Ваш брокер по работе с клиентами

Найдите лучшее место
для жизни, бизнеса, инвестиций

Оставьте свои контакты — с вами свяжется руководитель отдела для презентации нужного вам объекта

Похожие объекты