Id 158977

ЦАО, ЖК «Тринити-2», ул. Лётчика Осканова, 6 / Аренда / ПСН под Автомойку

адрес Москва, улица Лётчика Осканова, 6

С отдельным входом
Торговая
Жилой комплекс (мфк)
Новостройка
Автобизнес

518 490 RUB | в месяц

(за 1 м2 — 1 052 RUB)

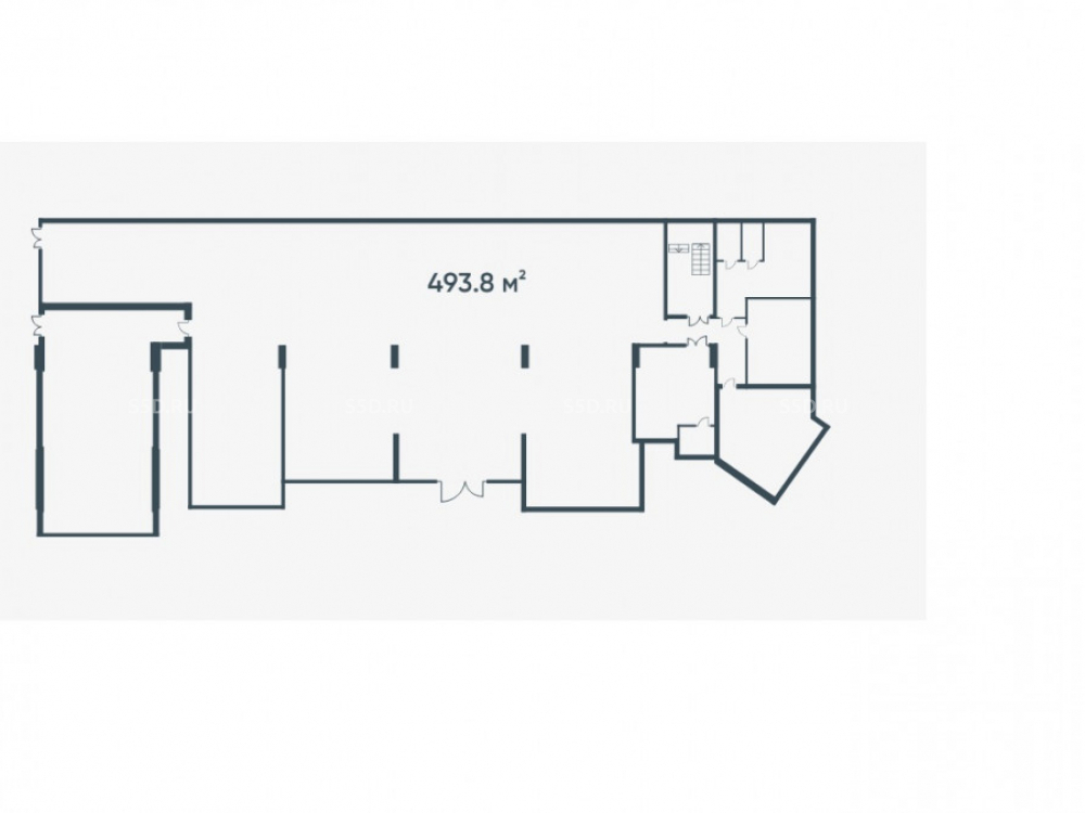
площадь 493.0 м2

QR код Qr код

Предлагается в аренду коммерческое помещение ПОД АВТОМОЙКУ (мойку автомобилей) площадью 493,8 м2 на минус первом этаже 33-этажного жилого дома в ЖК «Тринити-2».
Плотная жилая застройка: 1432 квартиры в комплексе, 127 машиномест. Объект является концептуальным продолжением популярного ЖК «Тринити», который был сдан в 2021 году. Здесь уже проживает более 1300 семей. Сдача всего комплекса планируется в третьем квартале 2027 г. В ЖК размещены супер-маркет, фитнес-клуб, кофейня, ПВЗ, ресторан. Метро в пешей доступности — 5 минут до м. Верхние Лихоборы.

Технические характеристики:
Площадь - 493,8 м2 , -1 этаж, 33-х этажном жилом доме. Отдельный вход. Эл. мощность - 70 кВт. Потолки - 3.9 метров. Планировка - свободная.

Коммерческие условия:
Стоимость аренды в месяц - 518 490 рублей
Ставка за кв.м / мес -1 050 рублей
ДДА возможен, каникулы, льготный период - обсуждаются.

Технические характеристики

Тип здания: С отдельным входом,Торговая,Жилой комплекс (мфк),Новостройка,Автобизнес

Общая площадь: 493  м2

Этаж: -1

Всего этажей: 19

Электрическая мощность: 70 кВт

Высота потолков: 3,9 м

Парковка: на улице

Коммерческие условия

Цена в месяц: 518 490 RUB

ФОРМА ВЛАДЕНИЯ: -

карта

Расположение

Адрес: Москва, улица Лётчика Осканова, 6

Округ: Центральный административный округ

Близость метро: Бауманская

Транспортная доступность: Верхние Лихоборы

Окружение

Торговое окружение: Плотная жилая застройка, бизнес-центр

Адрес:

Москва, улица Лётчика Осканова, 6

Округ:

Центральный административный округ

Близость метро:

Бауманская

Транспортная доступность:

Верхние Лихоборы

карта

Торговое окружение:

Плотная жилая застройка, бизнес-центр

Общая площадь:

493  м2

Этаж:

-1

Всего этажей:

19

Тип:

С отдельным входом,Торговая,Жилой комплекс (мфк),Новостройка,Автобизнес

Электрическая мощность:

70 кВт

Высота потолков:

3,9 м

Парковка:

на улице

ФОРМА ВЛАДЕНИЯ:

-

Цена в месяц:

518 490 RUB

Планировка

Александр Невский

Ваш брокер по работе с клиентами

Найдите лучшее место
для жизни, бизнеса, инвестиций

Оставьте свои контакты — с вами свяжется руководитель отдела для презентации нужного вам объекта

Похожие объекты