Id 158389

г. Москва, ул.Марии Ульяновой 17 к.3 - 69.6 м2/ продажа ГАБ

адрес Москва, улица Марии Ульяновой, 17к3

Арендный бизнес
С отдельным входом
Торговая

Окупаемость: 9.7 лет

Доходность:10.34%

11 500 000 RUB | за все

(за 1 м2 — 165 230 RUB)

площадь 69.6 м2

QR код Qr код

Предлагается в продажу готовый Арендный бизнес с арендатором Офис таксопарка по адресу: г. Москва, ул.Марии Ульяновой 17 к.3
В шаговой доступности станции метро: Проспект Вернадского - 10 мин. пешком, Новаторская- 10 мин. пешком, Вавиловская - 10 мин. пешком.
Густонаселенный жилой массив, район плотной жилой застройки.
Цокольный этаж жилого дома , отдельный вход.

Торговое окружение:
В пешей доступности расположены: ВБ, Яндекс маркет, аптека,


Технические характеристики:
Цокольный этаж жилого 5-ти этажного дома. 69.6 кв.м2., высота потолков 2.6 м. Отдельный вход. Эл. мощность: 15 кВт.

Коммерческие условия:
Стоимость объекта – 11 500 000 руб.
Стоимость за 1 кв. м. – 165 230 руб.
Арендатор: Офис таксопарка, ДДА, индексация 7%.
МАП общий- 100 000 руб/мес.,
ГАП - 1 200 000 руб.
Окупаемость - 10 лет,
доходность 11.6%

Технические характеристики

Тип здания: Арендный бизнес,С отдельным входом,Торговая

Общая площадь: 69.6  м2

Этаж: -1

Всего этажей: 5

Электрическая мощность: 25

Высота потолков: 2.6

Парковка: на улице

Коммерческие условия

Цена за все: 11 500 000 RUB

ФОРМА ВЛАДЕНИЯ: собственность ООО

Общий МАП: 135 000 RUB (данный МАП является минимальным, при оптимизации арендаторов арендный поток можно значительно увеличить)

Общий ГАП: 1 620 000 RUB

Окупаемость: 9.7 лет

Доходность: 10.34%

карта

Расположение

Адрес: Москва, улица Марии Ульяновой, 17к3

Близость метро: Вавиловская,Новаторская,Проспект Вернадского

Транспортная доступность: метро Проспект Вернадского, Новаторская 10 мин.

Окружение

Торговое окружение: яндекс маркет, аптека

Адрес:

Москва, улица Марии Ульяновой, 17к3

Округ:

Близость метро:

Вавиловская,Новаторская,Проспект Вернадского

Транспортная доступность:

метро Проспект Вернадского, Новаторская 10 мин.

карта

Торговое окружение:

яндекс маркет, аптека

Общая площадь:

69.6  м2

Этаж:

-1

Всего этажей:

5

Тип:

Арендный бизнес,С отдельным входом,Торговая

Электрическая мощность:

25

Высота потолков:

2.6

Парковка:

на улице

ФОРМА ВЛАДЕНИЯ:

собственность ООО

Цена за все:

11 500 000 RUB

Общий МАП: 135 000

(данный МАП является минимальным, при оптимизации арендаторов арендный поток можно значительно увеличить)

Общий ГАП:

1 620 000

Окупаемость:

9.7 лет

Доходность:

10.34%

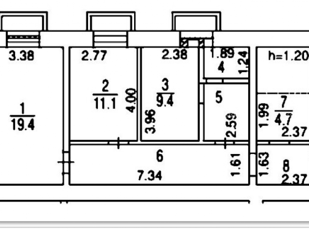
Планировка

Олеся Шайхисламова

Ваш брокер по работе с клиентами

Найдите лучшее место
для жизни, бизнеса, инвестиций

Оставьте свои контакты — с вами свяжется руководитель отдела для презентации нужного вам объекта

Похожие объекты