Id 158330

Мясницкая, 13с2 - 500 м2 / Аренда ПСН

адрес Москва, Мясницкая улица, 13с2

Многофункциональный
С отдельным входом
Торговая
Общепит

3 600 000 RUB | в месяц

(за 1 м2 — 7 200 RUB)

площадь 500.0 м2

QR код Qr код

Аренда торгового помещения в историческом центре Москвы. В деловом квартале столицы, на улице Мясницкая.
Адрес: г. Москва, ЦАО, Мясницкая, 13с2.

Здание расположено на первой линии домов по Мясницкой улице. Ближайшие станции метро: Лубянка, Сретенский бульвар, Тургеневская , Чистые пруды, Кузнецкий мост - пешая доступность (5-8 минут). Престижное место с большим потоком людей и развитой инфраструктурой. Рядом торговые центры, бутики, рестораны, отделения банков, бизнес-центры, отели. До Красной площади 8 минут пешком. Туристический маршрут. Организованная пешеходная зона.

Технические характеристики:
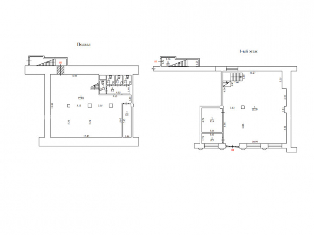
- Площадь - 500 кв.м, 1-й этаж и 2 помещения на цокольном этаже.
- Отдельный вход c фасада.
- Высокие потолки, витринные окна.
- Отдельная, мощная вытяжка.
- Электрическая мощность 200 кВт.
- Коммунальные и эксплуатационные услуги оплачиваются отдельно..
- Отличная визуализация входной группы с проезжей части.

Помещение оборудовано всей необходимой мебелью, кухонным оборудованием и барным оборудованием Отдельный вход с улицы обеспечивает удобный доступ для посетителей.
Подойдет по использование - street retail, ресторан, отель, апартаменты или представительский офис.

Технические характеристики

Тип здания: Многофункциональный,С отдельным входом,Торговая,Общепит

Общая площадь: 500  м2

Этаж: 1

Всего этажей: 3

Электрическая мощность: 200 квт

Высота потолков: 4

Парковка: да / на улице

Коммерческие условия

Цена в месяц: 3 600 000 RUB

ФОРМА ВЛАДЕНИЯ: ООО НДС

карта

Расположение

Адрес: Москва, Мясницкая улица, 13с2

Округ: Центральный административный округ

Близость метро: Лубянка,Чистые пруды

Транспортная доступность: Да

Окружение

Торговое окружение: Да

Адрес:

Москва, Мясницкая улица, 13с2

Округ:

Центральный административный округ

Близость метро:

Лубянка,Чистые пруды

Транспортная доступность:

Да

карта

Торговое окружение:

Да

Общая площадь:

500  м2

Этаж:

1

Всего этажей:

3

Тип:

Многофункциональный,С отдельным входом,Торговая,Общепит

Электрическая мощность:

200 квт

Высота потолков:

4

Парковка:

да / на улице

ФОРМА ВЛАДЕНИЯ:

ООО НДС

Цена в месяц:

3 600 000 RUB

Планировка

Александр Невский

Ваш брокер по работе с клиентами

Найдите лучшее место
для жизни, бизнеса, инвестиций

Оставьте свои контакты — с вами свяжется руководитель отдела для презентации нужного вам объекта

Похожие объекты