Id 158015

Москва, Ленинградское шоссе, 228к1 (ЖК 1-й Ленинградский корп.6) - 58.7 м2/Продажа ПСН с НДС

адрес Москва, Ленинградское шоссе, 228к1

Торговая

15 511 790 RUB | за все

(за 1 м2 — 264 255 RUB)

площадь 58.7 м2

QR код Qr код

Предлагается в продажу торговое помещение в монолитном 15и этажном жилом доме, расположенном по адресу: Москва, Ленинградское шоссе, 228к1 (ЖК "1-й Ленинградский", корпус №6) Район Молжаниново относится к Северному округу столицы и расположен вдоль Ленинградского шоссе.
Комплекс состоит из 6 домов переменной этажности (от 12 до 15 этажей - все корпуса сданы и заселены!!), наземного паркинга, детского сада и школы.
Количество квартир в ЖК – 3 483, расчетное кол-во жителей 8 700 человек. Комплекс находится всего в 7 км от МКАД по Ленинградскому шоссе, сразу после пересечения с Международным шоссе.
В 15 минутах пешком — МЦД (D-3) станция Молжаниново (Планерная) Ленинградского направления.
В 3 минутах от комплекса есть автобусная остановка, курсируют автобусы до метро «Планерная» и «Речной вокзал».
Помещение расположено в начале жилого массива, на въезде в ЖК, на внутреннем пешеходном трафике.
Торговое окружение: КрасноеБелое, Горздрав, Буханка, Ароматный Мир, Пятерочка, Бристоль, Дикси, Улыбка радуги, ПВЗ, аптеки.

Технические характеристики:
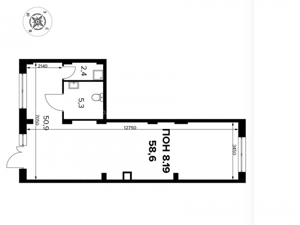
Площадь: 58.7 м2, назначение: свободное назначение, отдельный вход с улицы., количество этажей в помещении: 1, высота потолков: 4.1м (возможна организация антресоли), витринное остекление. Выделенная мощность по запросу. Вентиляция: 200x200; Ш100;
Вся современная инженерия. Электричество - 0.2кВт на м2.

Коммерческие условия:
Стоимость продажи: 15 511 790 рублей с НДС
Стоимость за м2: 264 255 рублей.
ДКПн (ООО с НДС)

Технические характеристики

Тип здания: Торговая

Общая площадь: 58.7  м2

Этаж: 1

Всего этажей: 15

Электрическая мощность: 0,2 кВт на м2

Высота потолков: 4.1м

Парковка: есть

Коммерческие условия

Цена за все: 15 511 790 RUB

ФОРМА ВЛАДЕНИЯ: -

карта

Расположение

Адрес: Москва, Ленинградское шоссе, 228к1

Округ: Северный административный округ

Близость метро: Молжаниново,Планерная,Ховрино

Транспортная доступность: В 15 минутах пешком жд станция Молжаниново (Планерная). В 3 минутах автобусная остановка

Окружение

Торговое окружение: Поблизости расположены: Буханка, Ароматный Мир, Пятерочка, Бристоль, Дикси, Улыбка радуги, ПВЗ, аптеки.

Адрес:

Москва, Ленинградское шоссе, 228к1

Округ:

Северный административный округ

Близость метро:

Молжаниново,Планерная,Ховрино

Транспортная доступность:

В 15 минутах пешком жд станция Молжаниново (Планерная). В 3 минутах автобусная остановка

карта

Торговое окружение:

Поблизости расположены: Буханка, Ароматный Мир, Пятерочка, Бристоль, Дикси, Улыбка радуги, ПВЗ, аптеки.

Общая площадь:

58.7  м2

Этаж:

1

Всего этажей:

15

Тип:

Торговая

Электрическая мощность:

0,2 кВт на м2

Высота потолков:

4.1м

Парковка:

есть

ФОРМА ВЛАДЕНИЯ:

-

Цена за все:

15 511 790 RUB

Планировка

Никифоров Андрей

Ваш брокер по работе с клиентами

Найдите лучшее место
для жизни, бизнеса, инвестиций

Оставьте свои контакты — с вами свяжется руководитель отдела для презентации нужного вам объекта

Похожие объекты