Id 157360

Москва, пр. Лихачёва, д. 20, - 410 кв.м/ Аренда помещения свободного назначения в новом ЖК iLand

адрес Москва, проспект Лихачёва, 20

С отдельным входом
Торговая
Общепит
Жилой комплекс (мфк)
Новостройка
Медицина

1 230 000 RUB | в месяц

(за 1 м2 — 3 000 RUB)

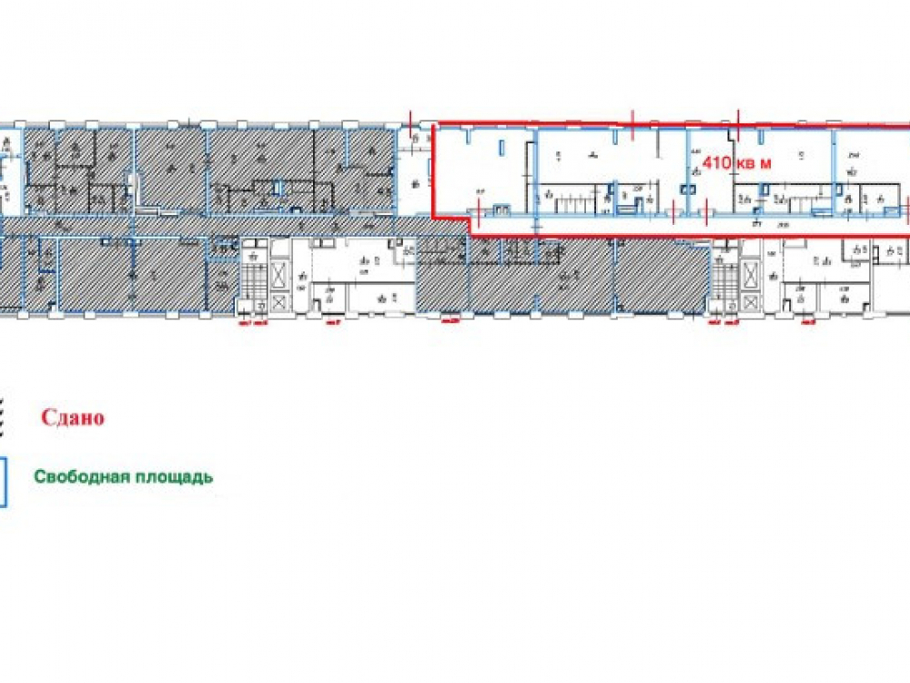
площадь 410.0 м2

QR код Qr код

Предлагается в аренду помещение свободного назначения в новом жилом комплексе Nagatino-i-Land расположенный в Даниловском районе (ЮАО) по адресу: г. Москва, пр. Лихачёва, д. 20.
Корпус 3, первой очереди. ЖК Nagatino-i-Land - масштабный жилой квартал бизнес-класса от Группы Эталон и британского архитектурного бюро AHR. Расположен всего в 5 минутах пешком от метро «Технопарк», он с двух сторон окружен набережными Москвы-реки. Уникальное сочетание транспортной доступности, оригинальной архитектуры и развитой инфраструктуры подарит вам возможность наслаждаться жизнью во всех ее проявлениях.
Рядом несколько БЦ, в которых располагаются офисы МТС, Мтс банка, Альфа банка, Райффайзен банка. Дополнительный трафик даст ЖК «Нау».

Технические характеристики помещения: Общая площадь - 410 кв.м. Первая линия домов, Высота потолков 4.6 м. Электрическая мощность – 150 кВт., Современные инженерные системы. Выводы ГВС/ХВС и канализации. Отдельный вход с улицы. Под помещением расположен технический этаж, имеется 3 технологических вытяжки в отдельный вентиляционный канал. Возможно деление площади.

Коммерческие условия:
Арендная ставка - 1 230 000 рублей
Ставка за кв.м/год - 36 000 рублей
Ставка за кв.м/мес. - 3 000 рублей
Ставка со второго года м2/мес - 3 500 рублей
УСН

Технические характеристики

Тип здания: С отдельным входом,Торговая,Общепит,Жилой комплекс (мфк),Новостройка,Медицина

Общая площадь: 410  м2

Этаж: 1

Всего этажей: 14

Электрическая мощность: 150 кВт

Высота потолков: 4.6 м

Парковка: Большая парковка рядом с помещением

Коммерческие условия

Цена в месяц: 1 230 000 RUB

ФОРМА ВЛАДЕНИЯ: Частная

карта

Расположение

Адрес: Москва, проспект Лихачёва, 20

Округ: Южный административный округ

Близость метро: Автозаводская (Замоскворецкая),Технопарк

Транспортная доступность: в 5 минутах пешком от метро Технопарк

Окружение

Торговое окружение: Рядом несколько БЦ, в которых располагаются офисы МТС, Мтс банка, Альфа банка, Райффайзен банка. Дополнительный трафик даст ЖК «Нау».

Адрес:

Москва, проспект Лихачёва, 20

Округ:

Южный административный округ

Близость метро:

Автозаводская (Замоскворецкая),Технопарк

Транспортная доступность:

в 5 минутах пешком от метро Технопарк

карта

Торговое окружение:

Рядом несколько БЦ, в которых располагаются офисы МТС, Мтс банка, Альфа банка, Райффайзен банка. Дополнительный трафик даст ЖК «Нау».

Общая площадь:

410  м2

Этаж:

1

Всего этажей:

14

Тип:

С отдельным входом,Торговая,Общепит,Жилой комплекс (мфк),Новостройка,Медицина

Электрическая мощность:

150 кВт

Высота потолков:

4.6 м

Парковка:

Большая парковка рядом с помещением

ФОРМА ВЛАДЕНИЯ:

Частная

Цена в месяц:

1 230 000 RUB

Николай

Ваш брокер по работе с клиентами

Найдите лучшее место
для жизни, бизнеса, инвестиций

Оставьте свои контакты — с вами свяжется руководитель отдела для презентации нужного вам объекта

Похожие объекты