Id 156244

Молдавская улица, вл1 / 170.18 м2 / Аренда торгового помещения в бизнес-центре Upside Kuntsevo

адрес Москва, Молдавская улица, вл1

Бизнес центр
С отдельным входом
Торговая

922 637 RUB | в месяц

(за 1 м2 — 5 421 RUB)

площадь 170.2 м2

QR код Qr код

Аренда торгового помещения на первом этаже в высокотехнологичном бизнес-центре Upside Kuntsevo, в престижном районе на Западе Москвы.
Адрес: Москва, Молдавская улица, вл1.
Проект строится в центре транспортного хаба, в двух минутах пешком от трех веток метро (Филевской и Арбатско-Покровской) и новой платформы БКЛ «Кунцевская»
5 минут до станции МЦД - 1 «Кунцевская».
В радиусе 200 метров расположено 8 остановок общественного транспорта, соединяющих район с центром города и областью по 15–ти маршрутам.
На автомобиле 15 минут до Москва сити или Нового Арбата.

Бизнес-центр состоит из двух корпусов высотой от 7 до 9 этажей, которые соединяются между собой на уровне первого этажа с эксплуатируемой кровлей.
На площади 2 467, 7 м² разместятся магазины, кафе, корпоративный кафетерий с террасой, конференц-зал, коворкинг и переговорные, что позволит сформировать насыщенную среду для резидентов.

Технические характеристики:
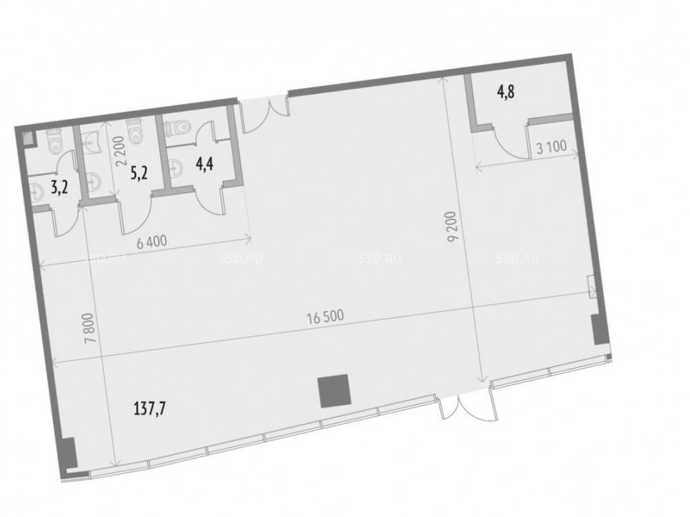
Площадь помещения: 170.18 кв.м. Отдельный вход. Витринное остекление. Вид на парк.
Высота потолков: 5.6 м. Электрическая мощность 35 кВт.
Свободная планировка. Без отделки.
Мокрая точка. Приточно-вытяжная вентиляция.
БЦ на высокой стадии готовности, ведутся фасадные работы.
Выдача ключей 4 квартал 2025 г.

Коммерческие условия:
Стоимость аренды: 922 637 руб/мес.
Стоимость за м2: 5 421 руб/мес.

Технические характеристики

Тип здания: Бизнес центр,С отдельным входом,Торговая

Общая площадь: 170.2  м2

Этаж: 1

Всего этажей: 7

Электрическая мощность: 35 кВт

Высота потолков: 5.6 м

Парковка: подземная

Коммерческие условия

Цена в месяц: 922 637 RUB

ФОРМА ВЛАДЕНИЯ: -

карта

Расположение

Адрес: Москва, Молдавская улица, вл1

Округ: Западный административный округ

Близость метро: Пионерская

Транспортная доступность: отличная

Окружение

Торговое окружение: развитое

Адрес:

Москва, Молдавская улица, вл1

Округ:

Западный административный округ

Близость метро:

Пионерская

Транспортная доступность:

отличная

карта

Торговое окружение:

развитое

Общая площадь:

170.2  м2

Этаж:

1

Всего этажей:

7

Тип:

Бизнес центр,С отдельным входом,Торговая

Электрическая мощность:

35 кВт

Высота потолков:

5.6 м

Парковка:

подземная

ФОРМА ВЛАДЕНИЯ:

-

Цена в месяц:

922 637 RUB

Планировка

Гервас Ксения

Ваш брокер по работе с клиентами

Найдите лучшее место
для жизни, бизнеса, инвестиций

Оставьте свои контакты — с вами свяжется руководитель отдела для презентации нужного вам объекта

Похожие объекты