Id 156021

Москва, САО, БЦ TowerD D1-P3(P)/330,5м2/ Продажа ресторан с видовой верандой в парке

адрес Москва, Бумажный проезд, 19с4

Бизнес центр
Многофункциональный
С отдельным входом
Торговая
Общепит
Новостройка

456 090 000 RUB | за все

(за 1 м2 — 1 380 000 RUB)

площадь 330.5 м2

QR код Qr код

В продаже помещение под ресторан в БЦ А класса, на 1м этаже Москва, премиального офисного квартала STONE Towers, расположенного в престижном Белорусском деловом районе. Отличительной особенностью башни станет сквозное двусветное лобби с прямым выходом в центр парка. Проект отличает высокая транспортная доступность, обеспечивающая связь с ключевыми районами. Общественные пространства и лобби бизнес-центра предлагают разнообразные зоны для работы и отдыха. Благоустройство территории включает функциональное зонирование, зеленые островки, ландшафтные холмы и воркаут-зону для резидентов. Локация предлагает резидентам комфортную среду для работы и жизни благодаря своей развитой инфраструктуре. Транспортная доступность, обеспечиваемая близостью к метро и ТТК, делает расположение STONE Савеловская особенно удобным. Все эти факторы создают благоприятную среду как для работы, так и для жизни.
По расчетам трафика целевой аудитории: ежедневно будут посещать около 10 тыс. резидентов и гостей. Дополнительный трафик сформируют два жилых комплекса поблизости на 5 600 жителей.

Основные характеристики:
Престижная локация
Высокая проходимость
Деловое и жилое окружение
Фасады из натурального камня
и витринное остекление в два уровня
Места для размещения вывески
Технология для размещения общепита
Продуманная логистика Гибкие планировочные решения
Зона размещения летней веранды.

Функциональные характеристики:
В фасаде здания использованы натуральный камень и структурное витринное остекление. Такое сочетание позволяет повысить статус проекта, а внутренний интерьер использовать как дополнительный элемент привлечения гостей.
Наличие второго света даст возможности для создания привлекающего внимание интерьера и повысит узнаваемость здания (заведения ресторана)
Места для размещения вывески и само расположение здания повысят его заметность и создадут дополнительное преимущество для оператора.
Свободная планировка, позволяющая гибко адаптировать пространство в зависимости от концепции оператора.
4 распределенных входа
Две зоны загрузки–погрузки (из паркинга и с уровня первого этажа)
Предусмотрено технологическое оснащение для размещения ресторана

Технические характеристики:
Здание/корпус: Ресторан
Этажи: 1
Sобщ: 330,5м2
высота 4.6 м
4 входа
Готовность: 2025
Свободный доступ 24/7
Здание ресторана (единственный)
+веранда у парка 5000 м2
Вывеска на фасаде
Витринное остекление
12 мин. метро "Белорусская"
4 мин. метро "Савеловская"


Финансовые характеристики:
Общая стоимость: 456 090 000 рублей
Стоимость кв.м. 1 380 000 рублей
D1-P3(P)ресторан
Первый взнос от 20%
Рассрочка 0% до окончания строительства

блоки объекта

R1-102

268.9 м2

517 632 500 руб за все

Технические характеристики

Тип здания: Бизнес центр,Многофункциональный,С отдельным входом,Торговая,Общепит,Новостройка

Общая площадь: 268.9  м2

Этаж: 1

Всего этажей: 20

Электрическая мощность: 400вм2

Высота потолков: 4,6 м

Парковка: наземная/подземная

Коммерческие условия

Цена за все: 456 090 000 RUB

ФОРМА ВЛАДЕНИЯ: н д

карта

Расположение

Адрес: Москва, Бумажный проезд, 19с4

Округ: Северный административный округ

Близость метро: Белорусская,Савеловская

Транспортная доступность: Пешая от метро

Окружение

Торговое окружение: БЦ

Адрес:

Москва, Бумажный проезд, 19с4

Округ:

Северный административный округ

Близость метро:

Белорусская,Савеловская

Транспортная доступность:

Пешая от метро

карта

Торговое окружение:

БЦ

Общая площадь:

268.9  м2

Этаж:

1

Всего этажей:

20

Тип:

Бизнес центр,Многофункциональный,С отдельным входом,Торговая,Общепит,Новостройка

Электрическая мощность:

400вм2

Высота потолков:

4,6 м

Парковка:

наземная/подземная

ФОРМА ВЛАДЕНИЯ:

н д

Цена за все:

456 090 000 RUB

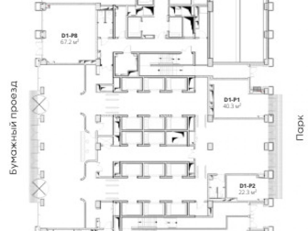
Планировка

Александр Невский

Ваш брокер по работе с клиентами

Найдите лучшее место
для жизни, бизнеса, инвестиций

Оставьте свои контакты — с вами свяжется руководитель отдела для презентации нужного вам объекта

Похожие объекты