Id 155954

Косинское шоссе, 12 - 77,1 - Аренда / Торговое помещение

адрес Балашиха, Косинское шоссе, 12

Многофункциональный
С отдельным входом
Торговая
Жилой комплекс (мфк)

100 000 RUB | в месяц

(за 1 м2 — 1 297 RUB)

площадь 77.1 м2

QR код Qr код

Аренда торгового помещения в ЖК «Новоград Павлино». Адрес: г. Балашиха, мкр. Новое Павлино, Косинское шоссе, 12. Ближайшие станции метро: Некрасовка – 9 мин. транспортом, Ольгино – 7 мин. транспортом. ЖК «Новоград Павлино» – современный квартал с домами до 20 этажей, благоустроенными дворами и многоуровневыми паркингами. Первая линия с высоким пешеходным и автомобильным трафиком. Остановка общественного транспорта прямо напротив помещения.

Торговое окружение:
Рядом расположены: магазин овощей и фруктов, магазин продуктов Верный, магазин пива, пункт выдачи Ozon, детский магазин, салон красоты, аптека, барбершоп Чёрная кость, супермаркет Дикси, химчистка Диана, магазин табака и курительных принадлежностей Табак, пиццерия.

Технические характеристики:
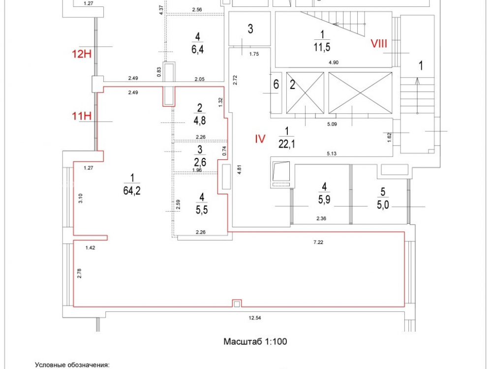
Помещение общей площадью – 77,1 кв. м., 1 этаж. Отдельный вход. Витринное остекление. Без отделки.. Высота потолков – 4,2 м. Центральное отопление, электрическая мощность – по запросу. Парковка перед фасадом, место для рекламы.

Коммерческие условия:
Арендная ставка: 100 000 рублей в месяц (УСН).
Ставка за 1 кв. м.: 1 297 рублей в месяц.
Ставка за 1 кв. м.: 15 564 рублей в год.
Минимальный срок аренды: 11 месяцев.
Арендные каникулы.

Технические характеристики

Тип здания: Многофункциональный,С отдельным входом,Торговая,Жилой комплекс (мфк)

Общая площадь: 77.1  м2

Этаж: 1

Всего этажей: 20

Электрическая мощность: по запросу

Высота потолков: 4,2 м

Парковка: наземная

Коммерческие условия

Цена в месяц: 100 000 RUB

ФОРМА ВЛАДЕНИЯ: собственность

карта

Расположение

Адрес: Балашиха, Косинское шоссе, 12

Близость метро: Некрасовка,Ольгино

Транспортная доступность: транспортом

Окружение

Торговое окружение: магазины, пункт выдачи, салоны красоты и т.д.

Адрес:

Балашиха, Косинское шоссе, 12

Округ:

Близость метро:

Некрасовка,Ольгино

Транспортная доступность:

транспортом

карта

Торговое окружение:

магазины, пункт выдачи, салоны красоты и т.д.

Общая площадь:

77.1  м2

Этаж:

1

Всего этажей:

20

Тип:

Многофункциональный,С отдельным входом,Торговая,Жилой комплекс (мфк)

Электрическая мощность:

по запросу

Высота потолков:

4,2 м

Парковка:

наземная

ФОРМА ВЛАДЕНИЯ:

собственность

Цена в месяц:

100 000 RUB

Планировка

Теребилов Михаил

Ваш брокер по работе с клиентами

Найдите лучшее место
для жизни, бизнеса, инвестиций

Оставьте свои контакты — с вами свяжется руководитель отдела для презентации нужного вам объекта

Похожие объекты