Id 155847

Москва, Летниковская улица, 18с1/590м2/Аренда ПСН

адрес Москва, Летниковская улица, 18с1

С отдельным входом
Торговая
Офис
Общепит

1 357 000 RUB | в месяц

(за 1 м2 — 2 300 RUB)

площадь 590.0 м2

QR код Qr код

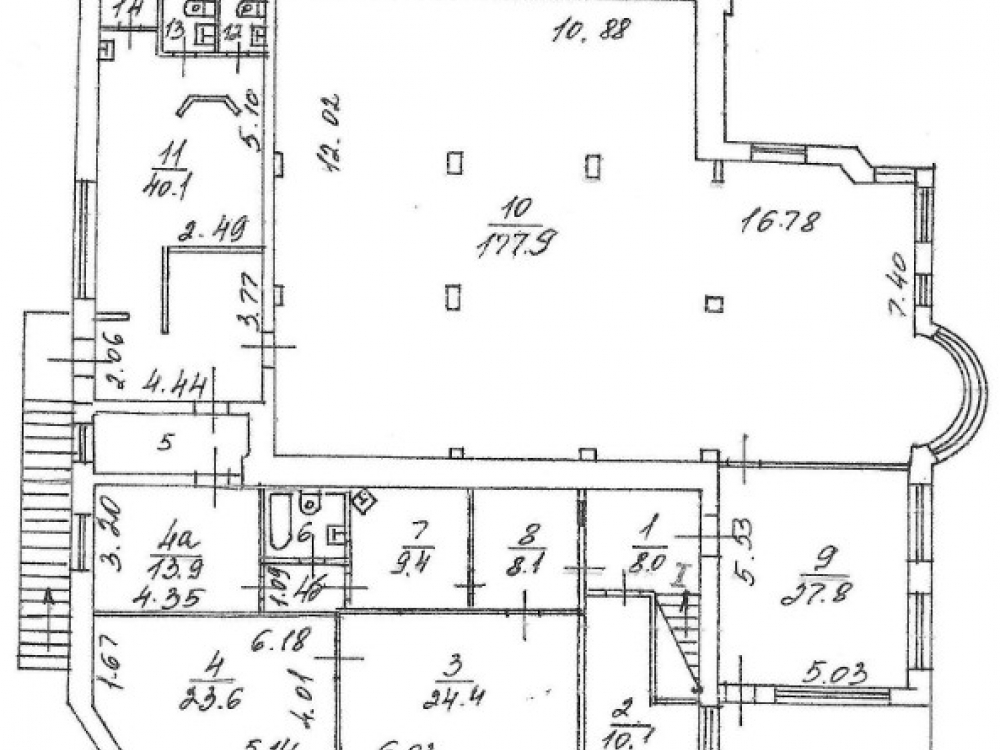
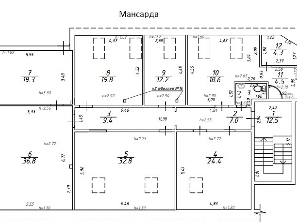
Предлагается в аренду торговое помещение площадью 590 кв.м. по адресу: Москва, ул. Летниковская , д.18, стр.1. Аренда помещения свободного назначения, расположенного на втором и мансардном этаже трехэтажного здания. . Плотный жилой массив, рядом ЖК Mitte, ЖК Level Павелецкая и ЖК HIGH LIFE. До метро Павелецкая 15 минут пешком. Под любой вид деятельности, кроме гостиницы.

Технические характеристики:
Общая площадь - 590 кв.м. 2 этаж+ мансарда. 2 этаж - 390 м2 (+ входная группа на первом этаже), мансарда - 200 м2. Мощность электроэнергии - 45 кВт. В процессе увеличения до 145 кВт. Отдельный вход с улицы.
Отопление индивидуальное, своя газовая котельная. Канализация городская. Горячая вода из котельни. Перекрытия ж/б. Зальная планировка. Парковка на 8 машиномест. Высота потолков от 2,8 до 3,4 м. Земля в аренде у города на 49 лет.

Коммерческие условия:
Цена аренды за здание в мес. - 1 357 000 рублей
Ставка аренды за 1 кв.м. в мес - 2 300 рублей
Ставка аренды за 1 кв.м. в год - 27 600 рублей
УСН

Технические характеристики

Тип здания: С отдельным входом,Торговая,Офис,Общепит

Общая площадь: 590  м2

Этаж: 2

Всего этажей: 3

Электрическая мощность: 45 КВт (в процессе оформления на 145 кВт дополнительно)

Высота потолков: Высота потолков от 2,8 до 3,4 м

Парковка: 8м/м

Коммерческие условия

Цена в месяц: 1 357 000 RUB

ФОРМА ВЛАДЕНИЯ: УСН

карта

Расположение

Адрес: Москва, Летниковская улица, 18с1

Округ: Центральный административный округ

Близость метро: Павелецкая

Транспортная доступность: 7 минут пешком от метро Павелецкая и жд вокзала

Окружение

Торговое окружение: Банки, рестораны, кафе

Адрес:

Москва, Летниковская улица, 18с1

Округ:

Центральный административный округ

Близость метро:

Павелецкая

Транспортная доступность:

7 минут пешком от метро Павелецкая и жд вокзала

карта

Торговое окружение:

Банки, рестораны, кафе

Общая площадь:

590  м2

Этаж:

2

Всего этажей:

3

Тип:

С отдельным входом,Торговая,Офис,Общепит

Электрическая мощность:

45 КВт (в процессе оформления на 145 кВт дополнительно)

Высота потолков:

Высота потолков от 2,8 до 3,4 м

Парковка:

8м/м

ФОРМА ВЛАДЕНИЯ:

УСН

Цена в месяц:

1 357 000 RUB

Планировка

Назарова Олеся

Ваш брокер по работе с клиентами

Найдите лучшее место
для жизни, бизнеса, инвестиций

Оставьте свои контакты — с вами свяжется руководитель отдела для презентации нужного вам объекта

Похожие объекты