Id 155336

ЖК Эко Видное 2.0 - 98,9 м² / Аренда помещения свободного назначения

адрес деревня Сапроново, квартал Центральный, 9

С отдельным входом
Торговая
Жилой комплекс (мфк)

247 250 RUB | в месяц

(за 1 м2 — 2 500 RUB)

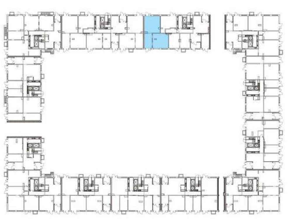
площадь 98.9 м2

QR код Qr код

Аренда помещения свободного назначения в ЖК Эко Видное 2.0, корпус Левитан по адресу: МО, деревня Сапроново, квартал Центральный, 9.
ЖК комфорт-класса на юге Подмосковья, в 7 км от МКАД. Здесь есть вся инфраструктура: детский сад (ещё один строится), школа, магазины, плавательный комплекс, собственная благоустроенная набережная с видовыми пейзажами и два наземных паркинга на 998 машиномест. 

Пять многосекционных корпусов высотой от 9 до 16 уровней. На первых этажах домов магазины, аптеки и другие объекты торговые объекты.
Более 4 000 квартир, >13 000 жителей.
Корпус сдан, идет заселение. 40% квартир с отделкой, что обеспечит трафик уже на старте.

Транспортная доступность: 25 минут от ст.метро «Домодедовская». Остановка автобусов находится в 1,5 км.
Проехать до столицы можно по Каширскому шоссе или платному участку трассы М-4 «Дон».

Технические характеристики:
Общая площадь 98.9 м² на 1-й этаже жилого дома. Отдельный вход. Витринное остекление. Высота потолков 4 м. Электрическая мощность 20 кВт. Зальная планировка. Все центральные коммуникации. Место для вывески.

Подойдет для кафе, пекарни, небольшого супермаркета, аптеки или салона красоты.

Коммерческие условия:
Стоимость аренды - 247 250 руб.
Стоимость за м² - 2 500 руб.

Технические характеристики

Тип здания: С отдельным входом,Торговая,Жилой комплекс (мфк)

Общая площадь: 98.9  м2

Этаж: 1

Всего этажей: 21

Электрическая мощность: 20 кВт

Высота потолков: 4 м

Парковка: Стихийная

Коммерческие условия

Цена в месяц: 247 250 RUB

ФОРМА ВЛАДЕНИЯ: -

карта

Расположение

Адрес: деревня Сапроново, квартал Центральный, 9

Округ: Южный административный округ

Близость метро: Домодедовская

Транспортная доступность: 25 минут от ст.метро «Домодедовская». Остановка автобусов находится в 1,5 км.

Окружение

Торговое окружение: Развитая инфраструктура

Адрес:

деревня Сапроново, квартал Центральный, 9

Округ:

Южный административный округ

Близость метро:

Домодедовская

Транспортная доступность:

25 минут от ст.метро «Домодедовская». Остановка автобусов находится в 1,5 км.

карта

Торговое окружение:

Развитая инфраструктура

Общая площадь:

98.9  м2

Этаж:

1

Всего этажей:

21

Тип:

С отдельным входом,Торговая,Жилой комплекс (мфк)

Электрическая мощность:

20 кВт

Высота потолков:

4 м

Парковка:

Стихийная

ФОРМА ВЛАДЕНИЯ:

-

Цена в месяц:

247 250 RUB

Планировка

Ирина Головина

Ваш брокер по работе с клиентами

Найдите лучшее место
для жизни, бизнеса, инвестиций

Оставьте свои контакты — с вами свяжется руководитель отдела для презентации нужного вам объекта

Похожие объекты