Id 154698

Москва, САО, Ленинградское ш., 58С26 / Продажа / Готовый арендный бизнес / 3367 кв.м.

адрес Москва, САО, Ленинградское ш., 58С26

Арендный бизнес
Многофункциональный
Особняк/здание
С отдельным входом
Торговая
Проект
ТЦ

Окупаемость: 9.8 лет

Доходность:10.26%

700 000 000 RUB | за все

(за 1 м2 — 207 919 RUB)

площадь 3 366.7 м2

QR код Qr код

Продается торговое двухэтажное помещение у метро Водный стадион, по адресу: Москва, Ленинградское шоссе, 58с26.

Технические характеристики:
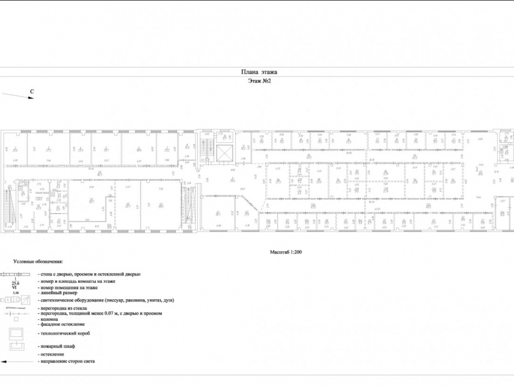
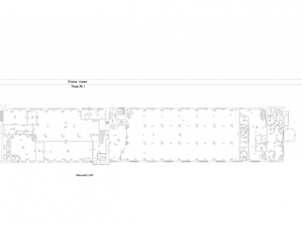
Общая площадь: 3366.7 кв. м, из низ 1 этаж - 1723 кв. м, h-4.35 метра, 2 этаж - 1643.1 кв. м, h-3.9 метра.
ЗУ в аренде, площадью 5644 кв. м.

Коммерческие условия:
Стоимость: 700 000 000 рублей.
Стоимость за кв.м.: 207 919 рублей.

Арендаторы: Вкусвилл, аптека, магазин косметики Подружка, Яндекс Лавка и другие. Нет вакантных площадей.
Общий МАП: 6 000 000 рублей.
Общий ГАП: 72 000 000 рублей.

Технические характеристики

Тип здания: Арендный бизнес,Многофункциональный,Особняк/здание,С отдельным входом,Торговая,Проект,ТЦ

Общая площадь: 3366.7  м2

Этаж: 1

Всего этажей: 2

Электрическая мощность: 200

Высота потолков: 435

Парковка: городская

Коммерческие условия

Цена за все: 700 000 000 RUB

ФОРМА ВЛАДЕНИЯ: Юр. лицо

Общий МАП: 6 000 000 RUB (данный МАП является минимальным, при оптимизации арендаторов арендный поток можно значительно увеличить)

Общий ГАП: 72 000 000 RUB

Окупаемость: 9.8 лет

Доходность: 10.26%

карта

Расположение

Адрес: Москва, САО, Ленинградское ш., 58С26

Округ: Северный административный округ

Близость метро: Водный стадион,Коптево,Речной вокзал

Транспортная доступность: До метро Водный Стадион 3 минуты пешком.

Окружение

Торговое окружение: Пятерочка, Магнит, Ермолино

Адрес:

Москва, САО, Ленинградское ш., 58С26

Округ:

Северный административный округ

Близость метро:

Водный стадион,Коптево,Речной вокзал

Транспортная доступность:

До метро Водный Стадион 3 минуты пешком.

карта

Торговое окружение:

Пятерочка, Магнит, Ермолино

Общая площадь:

3366.7  м2

Этаж:

1

Всего этажей:

2

Тип:

Арендный бизнес,Многофункциональный,Особняк/здание,С отдельным входом,Торговая,Проект,ТЦ

Электрическая мощность:

200

Высота потолков:

435

Парковка:

городская

ФОРМА ВЛАДЕНИЯ:

Юр. лицо

Цена за все:

700 000 000 RUB

Общий МАП: 6 000 000

(данный МАП является минимальным, при оптимизации арендаторов арендный поток можно значительно увеличить)

Общий ГАП:

72 000 000

Окупаемость:

9.8 лет

Доходность:

10.26%

Планировка

Павел

Ваш брокер по работе с клиентами

Найдите лучшее место
для жизни, бизнеса, инвестиций

Оставьте свои контакты — с вами свяжется руководитель отдела для презентации нужного вам объекта

Похожие объекты