Id 154631

г. Москва, г. Троицк, ул. Рождественская / Продажа инвестиционного проекта под завтройку

адрес г. Москва, г. Троицк, ул. Рождественская

Проект
Жилой комплекс (мфк)
ЗУ

1 120 000 000 RUB | за все

(за 1 м2 — 26 498 RUB)

площадь 42 267.0 м2

QR код Qr код

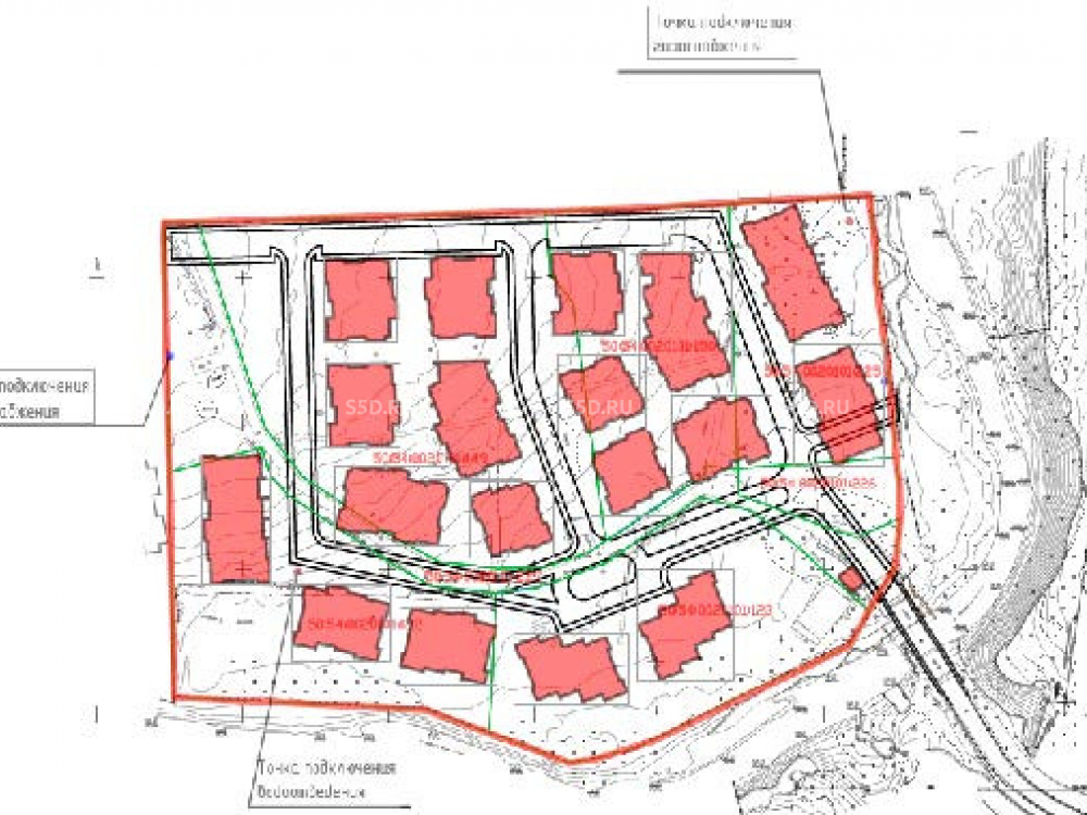
Предлагается в продажу инвестиционный проект на строительство объекта капитального строительства - комплекс блокированной жилой застройки, расположенный по адресу: г. Москва, г. Троицк, ул. Рождественская.
Проект состоит из земельных участков общей площадью 42 267 м2, проектное финансирование банка (Сбер), проект с ИРД, разрешение на строительство, мост на земельный участок, стройка не начата.
Земля в собственности, рядом будет метро в 30 году

1. РС есть
2. ГПЗУ свежее
3. Проектное финансирование в Сбере- 2 700 000 000 руб.

Основные виды разрешенного использования земельного участка: Блокированная жилая застройка.
Размещение жилого дома, имеющего одну или несколько общих стен с соседними жилыми домами (количеством этажей не более чем три, при общем количестве совмещенных домов не более десяти и каждый их которых предназначен для проживания одной семьи, имеет общую стену( общие стены) без проемов с соседним домом, расположен на отдельном земельном участке и имеет выход на территорию общего пользования (жилые дома блокированной застройки); разведение декоративных и плодовых деревьев, овощных и ягодных культур, размещение гаражей для собственных нужд и иных вспомогательных сооружеий, обсутройство спортивных и детских площадок, площадок для отдыха (2.3)

Технико-экономические показатели по ГЗК/ППТ/ГПЗУ(при наличии):
Предельная высота (м) - 15
Максимальная плотность (тыс.кв.м/га) - 4
Суммарная поэтажная площадь объекта в габаритах наружных стен (кв.м.) - 16920,0
Технико-экономические показатели по проекту:
Суммарная поэтажная площадь объекта в габаритах наружных стен (кв.м.) - 16895,0
Общая площадь (кв.м.) - 15205,5
Предельная высота (м) - 12,43
Этажность - 2-3 эт

Коммерческие условия:
Стоимость проекта: 1 120 000 000 рублей.

Технические характеристики

Тип здания: Проект,Жилой комплекс (мфк),ЗУ

Общая площадь: 42267  м2

Этаж: 1

Всего этажей: 3

Электрическая мощность: -

Высота потолков: -

Парковка: -

Коммерческие условия

Цена за все: 1 120 000 000 RUB

ФОРМА ВЛАДЕНИЯ: -

карта

Расположение

Адрес: г. Москва, г. Троицк, ул. Рождественская

Близость метро: Потапово

Транспортная доступность: --

Окружение

Торговое окружение: --

Адрес:

г. Москва, г. Троицк, ул. Рождественская

Округ:

Близость метро:

Потапово

Транспортная доступность:

--

карта

Торговое окружение:

--

Общая площадь:

42267  м2

Этаж:

1

Всего этажей:

3

Тип:

Проект,Жилой комплекс (мфк),ЗУ

Электрическая мощность:

-

Высота потолков:

-

Парковка:

-

ФОРМА ВЛАДЕНИЯ:

-

Цена за все:

1 120 000 000 RUB

Планировка

Никифоров Андрей

Ваш брокер по работе с клиентами

Найдите лучшее место
для жизни, бизнеса, инвестиций

Оставьте свои контакты — с вами свяжется руководитель отдела для презентации нужного вам объекта

Похожие объекты