Id 154599

Москва, Шелепихинское ш., 9 / Продажа / Готовый арендный бизнес / 73 кв. м.

адрес Москва, Шелепихинское ш., 9

Арендный бизнес
С отдельным входом
Торговая

Окупаемость: 9.8 лет

Доходность:10.17%

27 000 000 RUB | за все

(за 1 м2 — 369 863 RUB)

площадь 73.0 м2

QR код Qr код

Предлагается к продаже арендный бизнес, по адресу: Москва, Шелепихинское ш., 9, площадью 73 кв.м.

Ближайшая станция метро - Шелепиха, 2 минуты пешком. Помещение находится на цокольном этаже, ощущается как 1ый с большими окнами. Крупный жилой массив. Первый дом от метро. Торговое окружение: ВкусВилл, Дикси, Пятерочка.

Технические характеристики:
Общая площадь на цокольном этаже - 73 кв.м. Отдельный вход со двора. Наличие мокрой точки. Мощность выделенной электросети 15 кВт. Высота потолков - 2.4 м. Заключены прямые договоры с ресурсноснабжающими организациями. 4 окна.

Коммерческие условия:
Стоимость: 27 000 000 рублей.
Стоимость за кв.м: 369 863 рублей.

Арендатор: Wildberries
МАП: 230 000 рублей
ГАП: 2 760 000 рублей.
Окупаемость: 9.8 лет.
Индексация: до 10%
Срок договора: 11 месяцев с пролонгацией.

Технические характеристики

Тип здания: Арендный бизнес,С отдельным входом,Торговая

Общая площадь: 73  м2

Этаж: 1

Всего этажей: 12

Электрическая мощность: 15 кВт.

Высота потолков: 2.4 м.

Парковка: Есть

Коммерческие условия

Цена за все: 27 000 000 RUB

ФОРМА ВЛАДЕНИЯ: Физ. лицо

Общий МАП: 230 000 RUB (данный МАП является минимальным, при оптимизации арендаторов арендный поток можно значительно увеличить)

Общий ГАП: 2 760 000 RUB

Окупаемость: 9.8 лет

Доходность: 10.17%

карта

Расположение

Адрес: Москва, Шелепихинское ш., 9

Округ: Центральный административный округ

Близость метро: Тестовская,Шелепиха

Транспортная доступность: Ближайшая станция метро - м. Шелепиха, 2 минуты пешком.

Окружение

Торговое окружение: ВкусВилл, Дикси, Пятерочка.

Адрес:

Москва, Шелепихинское ш., 9

Округ:

Центральный административный округ

Близость метро:

Тестовская,Шелепиха

Транспортная доступность:

Ближайшая станция метро - м. Шелепиха, 2 минуты пешком.

карта

Торговое окружение:

ВкусВилл, Дикси, Пятерочка.

Общая площадь:

73  м2

Этаж:

1

Всего этажей:

12

Тип:

Арендный бизнес,С отдельным входом,Торговая

Электрическая мощность:

15 кВт.

Высота потолков:

2.4 м.

Парковка:

Есть

ФОРМА ВЛАДЕНИЯ:

Физ. лицо

Цена за все:

27 000 000 RUB

Общий МАП: 230 000

(данный МАП является минимальным, при оптимизации арендаторов арендный поток можно значительно увеличить)

Общий ГАП:

2 760 000

Окупаемость:

9.8 лет

Доходность:

10.17%

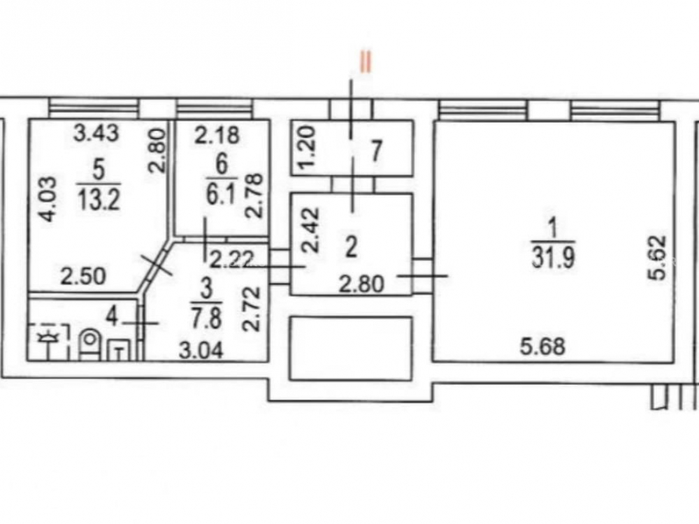
Планировка

Павел

Ваш брокер по работе с клиентами

Найдите лучшее место
для жизни, бизнеса, инвестиций

Оставьте свои контакты — с вами свяжется руководитель отдела для презентации нужного вам объекта

Похожие объекты