Id 153587

Москва, пос. Марушкинское, квартал 76, ЖК Квартал Западный, к.2 - 59,9 м2 / ПРОДАЖА ПСН

адрес деревня Большое Свинорье, ЖК Квартал Западный, к2

С отдельным входом
Торговая
Жилой комплекс (мфк)
Новостройка

19 000 000 RUB | за все

(за 1 м2 — 317 195 RUB)

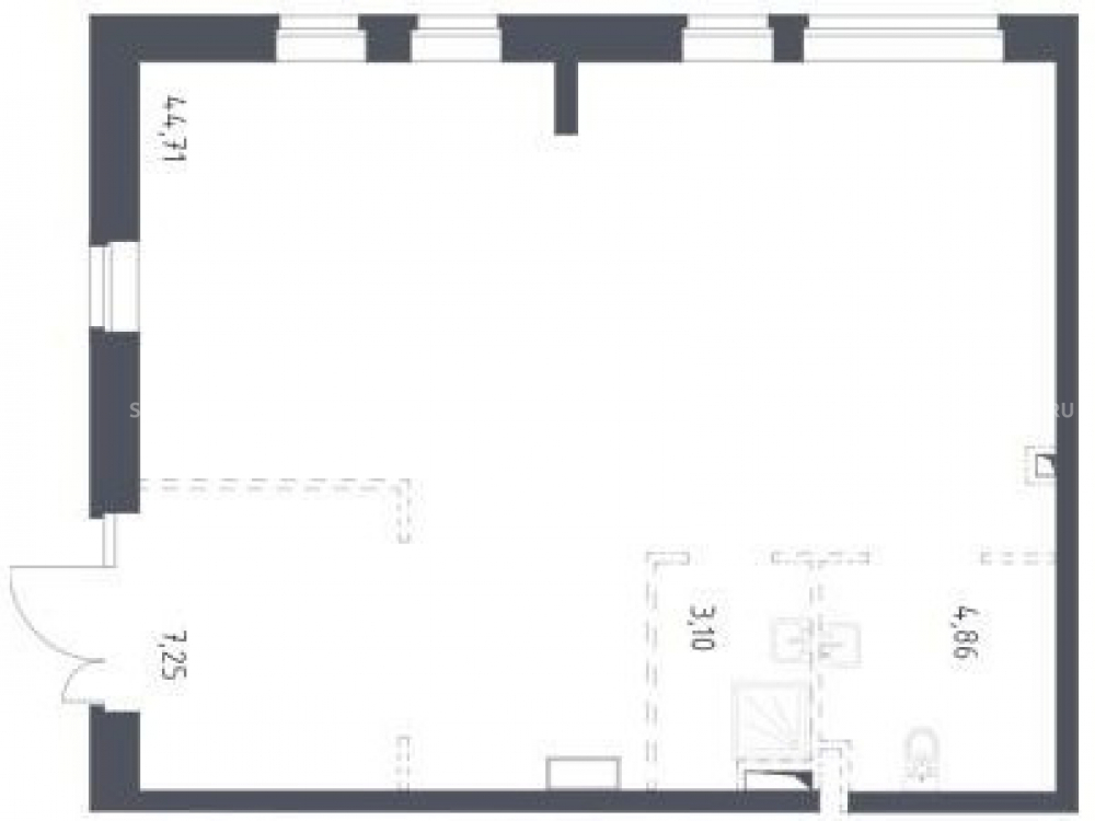
площадь 59.9 м2

QR код Qr код

Предлагается помещение свободного назначения, расположенное в современном жилом доме по адресу: Москва, пос. Марушкинское, квартал 76, ЖК "Квартал Западный", к. 2. ЖК "Квартал Западный" — жилой комплекс комфорт-класса, рассчитан на 27 000 жителей. Одновременно удачное расположение квартала на западе Москвы — в 7 км от МКАД. Помещение Угловое помещение в торце корпуса, в Центре новой очереди ЖК, идеальная планировка без колон. Помещение на главном бульваре в торговом коридоре ЖК. Застройщик ГК "Самолёт" .7 мин пешком от МЦД Санино. Плотный жилой массив. Интенсивный автомобильный и пешеходный трафик. Отдельный вход с улицы.

Технические характеристики:
Помещение 59.9 м2 , электрическая мощность 11 кВт, высота потолков 4 м, коммуникации центральные.

Коммерческие условия:
Стоимость: 19 000 000 руб
Стоимость за 1 м2: 317 000 руб

Технические характеристики

Тип здания: С отдельным входом,Торговая,Жилой комплекс (мфк),Новостройка

Общая площадь: 59.9  м2

Этаж: 1

Всего этажей: 15

Электрическая мощность: 11

Высота потолков: 4

Парковка: на улице

Коммерческие условия

Цена за все: 19 000 000 RUB

ФОРМА ВЛАДЕНИЯ: собственность

карта

Расположение

Адрес: деревня Большое Свинорье, ЖК Квартал Западный, к2

Округ: Западный административный округ

Близость метро: Санино

Транспортная доступность: -

Окружение

Торговое окружение: развитое

Адрес:

деревня Большое Свинорье, ЖК Квартал Западный, к2

Округ:

Западный административный округ

Близость метро:

Санино

Транспортная доступность:

-

карта

Торговое окружение:

развитое

Общая площадь:

59.9  м2

Этаж:

1

Всего этажей:

15

Тип:

С отдельным входом,Торговая,Жилой комплекс (мфк),Новостройка

Электрическая мощность:

11

Высота потолков:

4

Парковка:

на улице

ФОРМА ВЛАДЕНИЯ:

собственность

Цена за все:

19 000 000 RUB

Планировка

Александр Невский

Ваш брокер по работе с клиентами

Найдите лучшее место
для жизни, бизнеса, инвестиций

Оставьте свои контакты — с вами свяжется руководитель отдела для презентации нужного вам объекта

Похожие объекты