Id 153050

г. Москва, НАО, поселение Сосенское, ул. Александры Монаховой, 87к6 / 42 кв.м. / Продажа ГАБ Корейский фаст-фуд

адрес улица Александры Монаховой, 87к6

Арендный бизнес
С отдельным входом
Торговая

Окупаемость: 13.9 лет

Доходность:7.19%

27 500 000 RUB | за все

(за 1 м2 — 654 762 RUB)

площадь 42.0 м2

QR код Qr код

Предлагается в продажу торговое помещение с арендатором Корейский фаст-фуд в новом ЖК «Бунинские луга» по адресу: г. Москва, НАО, поселение Сосенское, ул. Александры Монаховой, 87к6. Ближайшие станции метро «Потапово» 3 мин. пешком. ЖК «Бунинские луга» — это современный густонаселенный район с плотной жилой застройкой, проект компании ПИК. Комплекс «Бунинские луга» - является одним из самых крупных проектов в Новой Москве. Общее количество квартир – 13 070, количество жителей по завершении строительства – около 32 500 чел. Развитая инфраструктура района.

Торговое окружение: Subway, Живика, Буханка, Винлаб, Пятерочка, Точка красоты.

Технические характеристики:
Общая площадь помещения 42 кв. м., 1 этаж. Отдельный вход. Витринное остекление. Открытая планировка. Высота потолков – 4,8 м. Электрическая мощность 9 кВт ( возможно увеличение). Место для размещения рекламы.

Коммерческие условия:
Стоимость объекта – 27 500 000 рублей;
Стоимость за 1 кв. м. – 654 761 рублей.
Арендатор: Корейский фаст-фуд.
МАП: 165 000 рублей
ГАП: 1 980 000 рублей
ДДА от 09.02.25 с безусловной индексацией 10%.
КУ оплачиваются отдельно.

Технические характеристики

Тип здания: Арендный бизнес,С отдельным входом,Торговая

Общая площадь: 42  м2

Этаж: 1

Всего этажей: 17

Электрическая мощность: 9

Высота потолков: 4,8

Парковка: Свободная

Коммерческие условия

Цена за все: 27 500 000 RUB

ФОРМА ВЛАДЕНИЯ: Физ.лицо

Окупаемость: 13.9 лет

Доходность: 7.19%

карта

Расположение

Адрес: улица Александры Монаховой, 87к6

Близость метро: Потапово

Транспортная доступность: Ближайшие станции метро «Потапово» 3 мин. пешком.

Окружение

Торговое окружение: Subway, Живика, Буханка, Винлаб, Пятерочка, Точка красоты.

Адрес:

улица Александры Монаховой, 87к6

Округ:

Близость метро:

Потапово

Транспортная доступность:

Ближайшие станции метро «Потапово» 3 мин. пешком.

карта

Торговое окружение:

Subway, Живика, Буханка, Винлаб, Пятерочка, Точка красоты.

Общая площадь:

42  м2

Этаж:

1

Всего этажей:

17

Тип:

Арендный бизнес,С отдельным входом,Торговая

Электрическая мощность:

9

Высота потолков:

4,8

Парковка:

Свободная

ФОРМА ВЛАДЕНИЯ:

Физ.лицо

Цена за все:

27 500 000 RUB

Окупаемость:

13.9 лет

Доходность:

7.19%

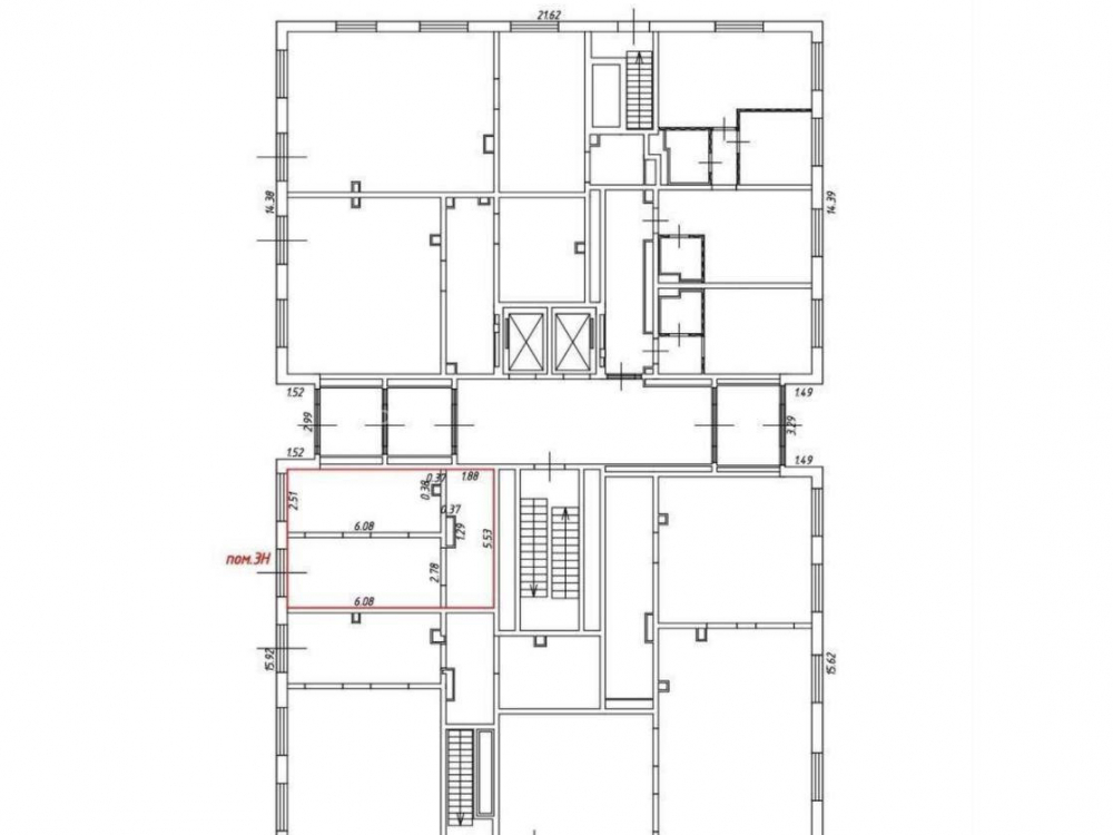
Планировка

Степанов Анатолий

Ваш брокер по работе с клиентами

Найдите лучшее место
для жизни, бизнеса, инвестиций

Оставьте свои контакты — с вами свяжется руководитель отдела для презентации нужного вам объекта

Похожие объекты