Id 152783

г.Москва, пр.Андропова 11к1/Аренда/ПСН

адрес Андропова д 11к1

Бизнес центр
Многофункциональный
С отдельным входом
Торговая
Офис
Общепит
Медицина

2 817 000 RUB | в месяц

(за 1 м2 — 3 499 RUB)

площадь 805.0 м2

QR код Qr код

Аренда коммерческих помещений свободного назначения в отдельно стоящем здании.
Адрес: г. Москва, Проспект Андропова 11, корпус 1
Комплекс зданий расположен в районе Нагатинский Затон г. Москвы. В непосредственной близости находятся транспортные дороги: проспект Андропова и ТТК. В пешей доступности станции метро: Кожуховская, Автозаводская, Нагатинский Затон. В 200 м располагается культурно-развлекательный парк "Остров Мечты".

Технические характеристики:
-Общая площадь здания– 3545 м2
- Этажность: 3+подвал (242м2)
-Панорамное остекление
-Отдельные входные группы с зонами разгрузки,
-Высота потолков 5м-5.5м,
-Места под вывески на фасаде,
-Уличное пространство для летней веранды.
- Отделка Shell&Core
-Электрическая мощность от 200 КВт на этаж
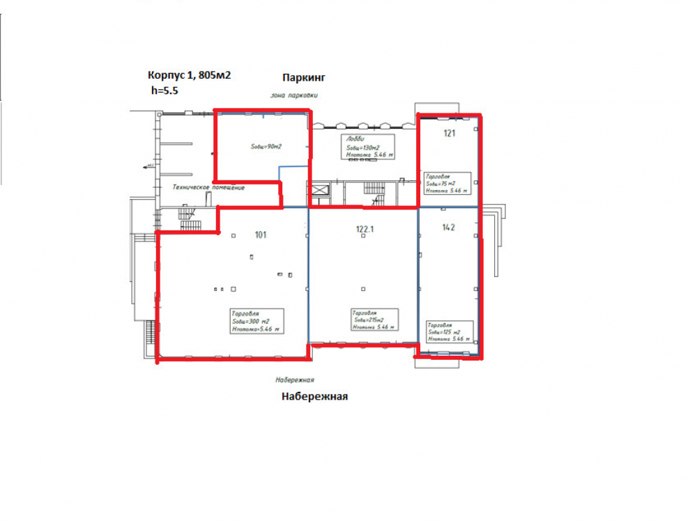
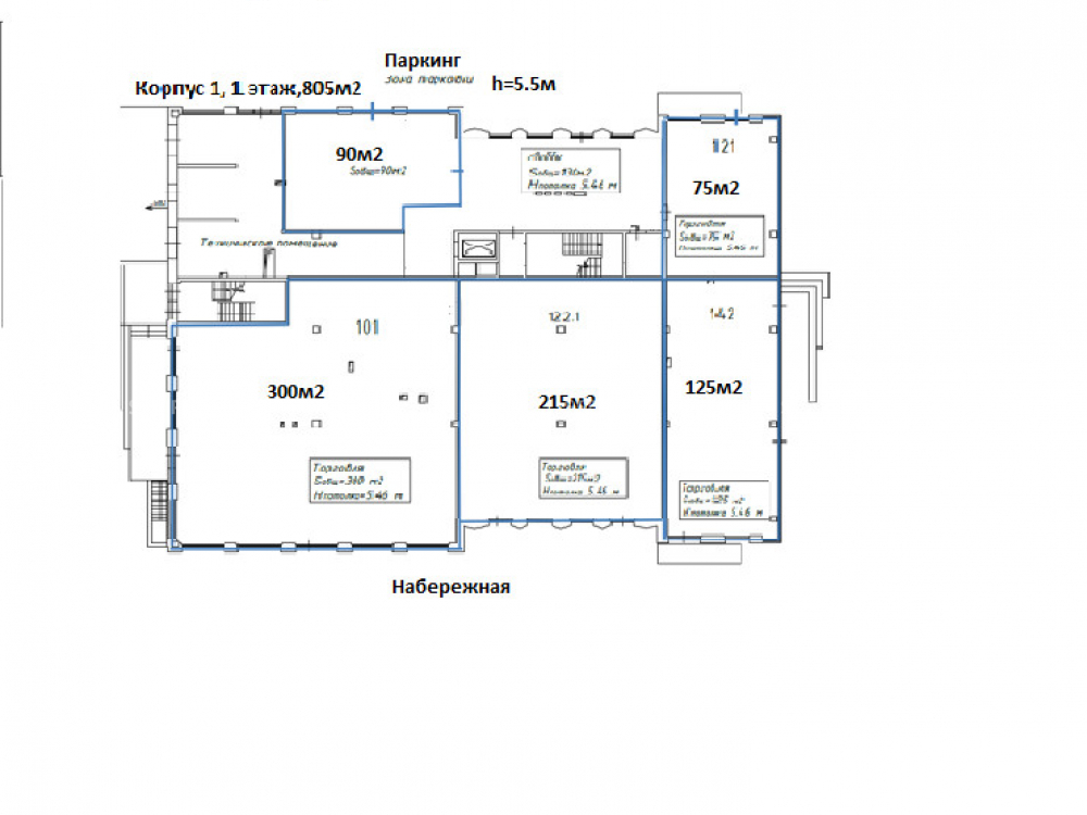
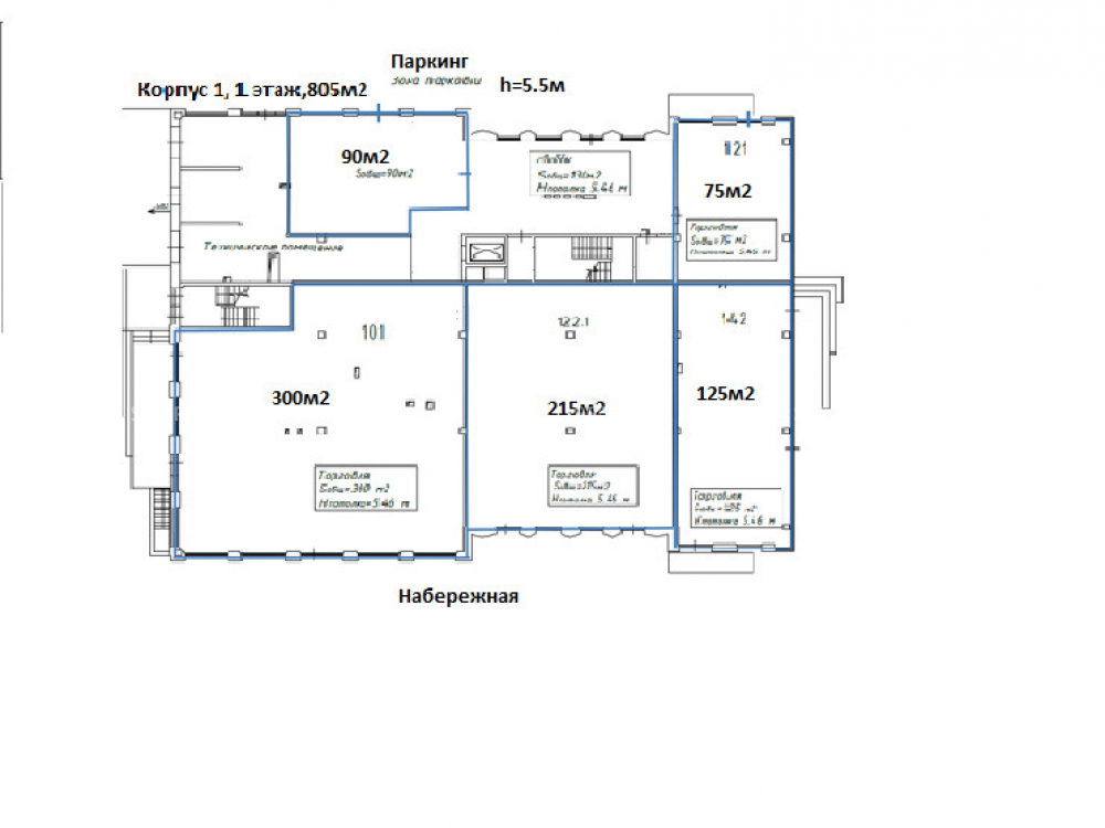
Площади в аренду:

1 этаж, 805 м2, возможно деление/объединение в иные блоки:
-75 м2, 90 м2, 125 м2, 215 м2, 300 м2

Коммерческие условия:
Арелная ставка 3500 руб/м2 вкл НДС(20%)и/и 15% от ТО, но не менее фикс.ставки.

блоки объекта

пр. Андропова 11к1/Аренда ПСН 300 м2

300.0 м2

1 050 000 руб в месяц

пр. Андропова 11к1/Аренда ПСН 215 м2

215.0 м2

752 000 руб в месяц

пр. Андропова 11к1/Аренда ПСН 125 м2

125.0 м2

437 000 руб в месяц

пр. Андропова 11к1/Аренда ПСН 90 м2

90.0 м2

315 000 руб в месяц

пр. Андропова 11к1/Аренда ПСН 75м2

75.0 м2

262 500 руб в месяц

Технические характеристики

Тип здания: Бизнес центр,Многофункциональный,С отдельным входом,Торговая,Офис,Общепит,Медицина

Общая площадь: 805  м2

Этаж: 1

Всего этажей: 3

Электрическая мощность: 200

Высота потолков: 5.5

Парковка: Есть

Коммерческие условия

Цена в месяц: 2 817 000 RUB

ФОРМА ВЛАДЕНИЯ: Собственность

карта

Расположение

Адрес: Андропова д 11к1

Округ: Южный административный округ

Близость метро: Технопарк

Транспортная доступность: Отличная

Окружение

Торговое окружение: Детейлинг центр, Кальянная 24/7, магазины, рестораны, предприятия сферы обслуживания, детский развлекательный парк

Адрес:

Андропова д 11к1

Округ:

Южный административный округ

Близость метро:

Технопарк

Транспортная доступность:

Отличная

карта

Торговое окружение:

Детейлинг центр, Кальянная 24/7, магазины, рестораны, предприятия сферы обслуживания, детский развлекательный парк

Общая площадь:

805  м2

Этаж:

1

Всего этажей:

3

Тип:

Бизнес центр,Многофункциональный,С отдельным входом,Торговая,Офис,Общепит,Медицина

Электрическая мощность:

200

Высота потолков:

5.5

Парковка:

Есть

ФОРМА ВЛАДЕНИЯ:

Собственность

Цена в месяц:

2 817 000 RUB

Планировка

Александр Невский

Ваш брокер по работе с клиентами

Найдите лучшее место
для жизни, бизнеса, инвестиций

Оставьте свои контакты — с вами свяжется руководитель отдела для презентации нужного вам объекта

Похожие объекты