Id 152351

5-я Мякининская улица, 20/ 57,3 кв.м./ продажа ПСН в клубном доме Рублево

адрес 5-я Мякининская улица, 20, клубный дом Рублево

С отдельным входом
Торговая
Жилой комплекс (мфк)
Новостройка

24 318 000 RUB | за все

(за 1 м2 — 424 398 RUB)

площадь 57.3 м2

QR код Qr код

Предлагается в продажу торговое помещение в клубном доме «Рублево» по адресу: г. Москва, 5-я Мякининская улица, 20. Клубный дом «Рублево» расположен около благоустроенной набережной с яхт-клубом в 19 мин. ходьбы от метро Мякинино. Первая линия, через дорогу строится большой жилой комплекс "Квартал Строгино". Торговое окружение: Лемана Про, Ашан, хостелы, Фитнесс клуб Jаninn, салон красоты, ресторан Парк Рублево, Яхт клуб, Правительство МО, ТЦ Vegas.

Срок ввода в эксплуатацию - сдан, идет заселение.

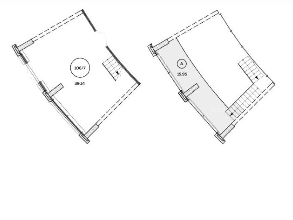
Технические характеристики: общая площадь 57,3 кв.м. • первый этаж с антресолью в жилом 10 этажном доме • электроэнергия 17 кВт. • отдельный вход • без отделки • площадь 1го этажа 38,88 кв.м., антресоль 15,09 кв.м. (можно увеличить, т.к. 7ми метровые потолки позволяют сделать полноценный 2й этаж)

Коммерческие условия:
• Стоимость 24 318 000 рублей
• Стоимость кв.м. 424 398 рублей
• Продажа по ДКП от юр. лица с НДС
• Возможна рассрочка на 6 месяцев, первоначальный взнос 50%, остаток равными ежемесячными платежами

Технические характеристики

Тип здания: С отдельным входом,Торговая,Жилой комплекс (мфк),Новостройка

Общая площадь: 57.3  м2

Этаж: 1

Всего этажей: 10

Электрическая мощность: 17 кВт

Высота потолков: 7

Парковка: подземная

Коммерческие условия

Цена за все: 24 318 000 RUB

ФОРМА ВЛАДЕНИЯ: ДКП

карта

Расположение

Адрес: 5-я Мякининская улица, 20, клубный дом Рублево

Округ: Западный административный округ

Близость метро: Мякинино

Транспортная доступность: 19 мин.пешком от метро Мякинино

Окружение

Торговое окружение: Лемана Про, Ашан, хостелы, Фитнесс клуб Jаninn, салон красоты, ресторан Парк Рублево, Яхт клуб, Правительство МО, ТЦ Vegas

Адрес:

5-я Мякининская улица, 20, клубный дом Рублево

Округ:

Западный административный округ

Близость метро:

Мякинино

Транспортная доступность:

19 мин.пешком от метро Мякинино

карта

Торговое окружение:

Лемана Про, Ашан, хостелы, Фитнесс клуб Jаninn, салон красоты, ресторан Парк Рублево, Яхт клуб, Правительство МО, ТЦ Vegas

Общая площадь:

57.3  м2

Этаж:

1

Всего этажей:

10

Тип:

С отдельным входом,Торговая,Жилой комплекс (мфк),Новостройка

Электрическая мощность:

17 кВт

Высота потолков:

7

Парковка:

подземная

ФОРМА ВЛАДЕНИЯ:

ДКП

Цена за все:

24 318 000 RUB

Планировка

Александр Невский

Ваш брокер по работе с клиентами

Найдите лучшее место
для жизни, бизнеса, инвестиций

Оставьте свои контакты — с вами свяжется руководитель отдела для презентации нужного вам объекта

Похожие объекты