Id 152018

Бахрушина 36/14с3 - 28,8 кв. м. / Аренда помещения (Проект 2 кв. 2026 год) свободного назначения у метро Павелецкая кольцевая

адрес Москва, Бахрушина 36/14с3

С отдельным входом
Торговая
Общепит

965 000 RUB | в месяц

(за 1 м2 — 33 507 RUB)

площадь 28.8 м2

QR код Qr код

ЦАО. Предлагается в аренду помещение в отдельно стоящем здании у метро Павелецкая кольцевая, расположенном по адресу: г.Москва, ЦАО, Бахрушина, 36/14c3 с входом со стороны Садового кольца.. Метро Павелецкая - 80 метров. Здание расположено на пересечение Садового кольца и ул. Бахрушина. Окружение состоит из театра Бахрушина, Павелецкого Вокзала, кинотеатра "Пять Звезд", нового строящегося ТПУ Павелецкая и прочее. Очень высокий автомобильный и пешеходный трафик.

Технические параметры:
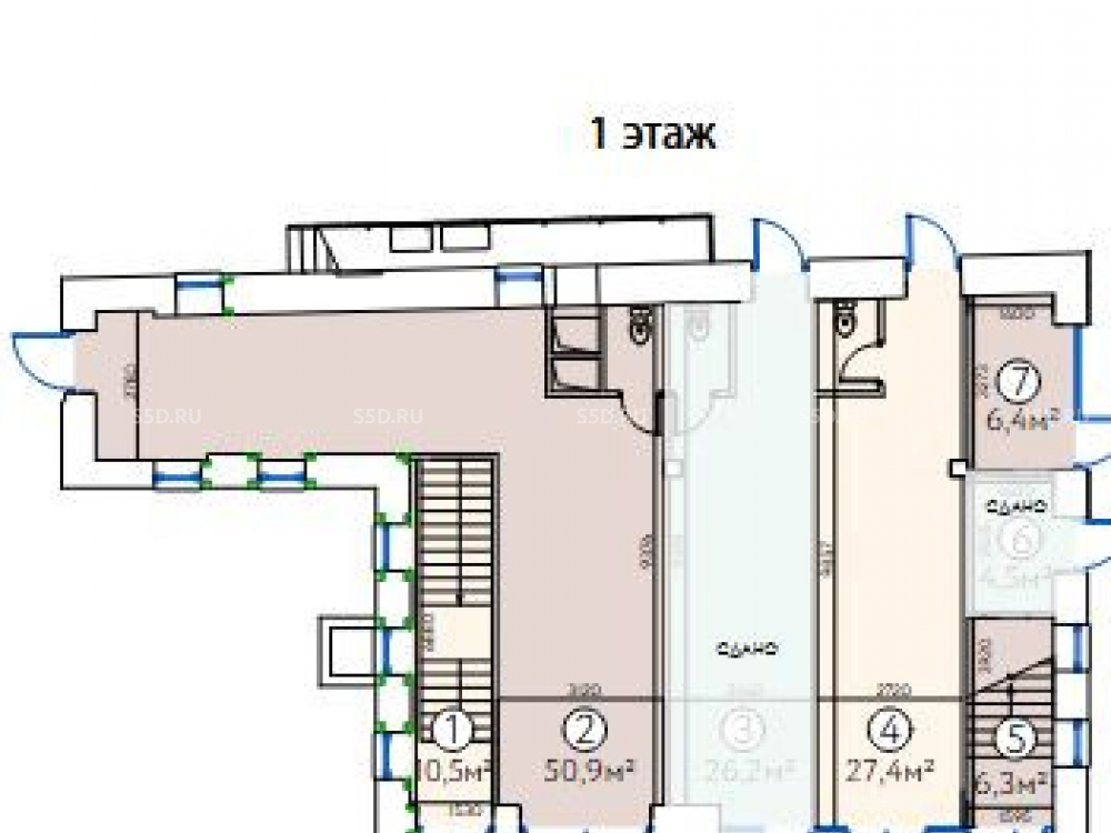
1 этаж. Общая площадь - 28.8 кв.м.
Центральные коммуникации: ГВС, ХВС, отопление, канализация. Электрическая мощность - 380 кВт на все здание. Вытяжка. Запасной выход во двор. Зона погрузки-разгрузки во дворе. Возможно организовать летнюю веранду на 60 посадочных мест. Окончание строительства - середина 2026 года.

Коммерческие условия:
Стоимость аренды - 850 000 рублей
Стоимость аренды за 1 кв.м - 29 514 рублей

Технические характеристики

Тип здания: С отдельным входом,Торговая,Общепит

Общая площадь: 28.8  м2

Этаж: 1

Всего этажей: 3

Электрическая мощность: по запросу

Высота потолков: 3,3

Парковка: Городская

Коммерческие условия

Цена в месяц: 965 000 RUB

ФОРМА ВЛАДЕНИЯ: ООО на НДС

карта

Расположение

Адрес: Москва, Бахрушина 36/14с3

Округ: Центральный административный округ

Близость метро: Павелецкая

Транспортная доступность: Удобная

Окружение

Торговое окружение: Вся инфраструктура

Адрес:

Москва, Бахрушина 36/14с3

Округ:

Центральный административный округ

Близость метро:

Павелецкая

Транспортная доступность:

Удобная

карта

Торговое окружение:

Вся инфраструктура

Общая площадь:

28.8  м2

Этаж:

1

Всего этажей:

3

Тип:

С отдельным входом,Торговая,Общепит

Электрическая мощность:

по запросу

Высота потолков:

3,3

Парковка:

Городская

ФОРМА ВЛАДЕНИЯ:

ООО на НДС

Цена в месяц:

965 000 RUB

Планировка

Александр Невский

Ваш брокер по работе с клиентами

Найдите лучшее место
для жизни, бизнеса, инвестиций

Оставьте свои контакты — с вами свяжется руководитель отдела для презентации нужного вам объекта

Похожие объекты