Id 152007

г. Москва, Пятницкая 16 с.1 / 78,2 кв. м. / Аренда помещения свободного назначения у метро Новокузнецкая.

адрес Москва, Пятницкая 16

С отдельным входом
Торговая
Общепит

1 250 000 RUB | в месяц

(за 1 м2 — 15 985 RUB)

площадь 78.2 м2

QR код Qr код

ЦАО. Предлагается в аренду помещение в 3-этажном в административном здании площадью 78,2 кв.м., расположенном на одной из самых ресторанных улиц Москвы по адресу: г. Москва, Пятницкая 16 с.1.
Помещение расположено на 1-ой фасадной линии Пятницкой улицы. Помещение расположено напротив м. «Новокузнецкая», на оживленной Пятницкой улице. Сложившееся торговое окружение. Трафик: 3 000 - 3 800 чел/час. Все кто выходят из метро видят это помещение.
Окружение: Развитая инфраструктура, делающая эту улицу известной гастроулицей столицы: кафе, рестораны, магазины, банки, офисы. Рядом находятся Третьяковская галерея, Кадашевская и Овчинниковская набережные, различные музеи и скверы для прогулок.

Технические характеристики:
Высота потолка 3,4 м. Все коммуникации. Электрической мощности достаточно для ведения любого вида деятельности. Возможен общепит.
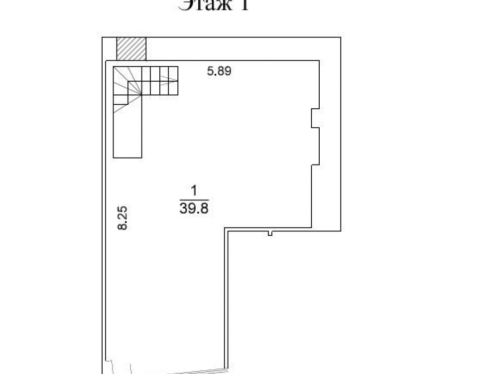
Общая площадь – 78,2 кв. м. 1 этаж - 39,8 кв. м. Подвал - 38,4 кв. м.
Состояние: за выездом Бара "Брюзга"

Коммерческие условия:
Стоимость аренды - 1 250 000 рублей
Стоимость аренды в месяц за кв. м. - 15 984 рублей
УСН

Технические характеристики

Тип здания: С отдельным входом,Торговая,Общепит

Общая площадь: 78.2  м2

Этаж: 1

Всего этажей: 3

Электрическая мощность: 40

Высота потолков: 3,7

Парковка: Городская

Коммерческие условия

Цена в месяц: 1 250 000 RUB

ФОРМА ВЛАДЕНИЯ: ООО на НДС

карта

Расположение

Адрес: Москва, Пятницкая 16

Округ: Центральный административный округ

Близость метро: Новокузнецкая

Транспортная доступность: Удобная

Окружение

Торговое окружение: Вся инфраструктура

Адрес:

Москва, Пятницкая 16

Округ:

Центральный административный округ

Близость метро:

Новокузнецкая

Транспортная доступность:

Удобная

карта

Торговое окружение:

Вся инфраструктура

Общая площадь:

78.2  м2

Этаж:

1

Всего этажей:

3

Тип:

С отдельным входом,Торговая,Общепит

Электрическая мощность:

40

Высота потолков:

3,7

Парковка:

Городская

ФОРМА ВЛАДЕНИЯ:

ООО на НДС

Цена в месяц:

1 250 000 RUB

Планировка

Шаклеина Юлия

Ваш брокер по работе с клиентами

Найдите лучшее место
для жизни, бизнеса, инвестиций

Оставьте свои контакты — с вами свяжется руководитель отдела для презентации нужного вам объекта

Похожие объекты