Id 151743

СЗАО, Москва, ул. Берзарина, 32/64м2/ПСН Аренда

адрес Москва, ул. Берзарина, 32

С отдельным входом
Торговая
Общепит
Медицина

330 000 RUB | в месяц

(за 1 м2 — 5 156 RUB)

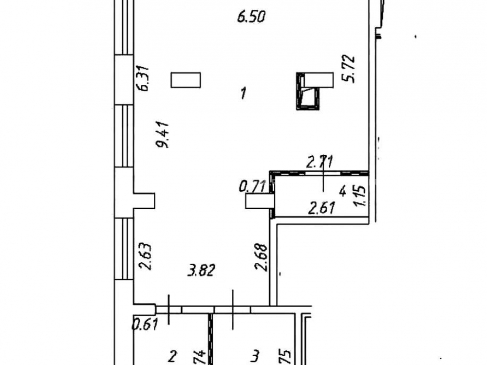
площадь 64.0 м2

QR код Qr код

Предлагается в аренду нежилое помещение свободного назначения по адресу: СЗАО, район Щукино. Москва, ул. Берзарина, д. 32, площадью 64 м2. Новый заселенный массив в ЖК «Октябрьское поле», 28 домов бизнес клaсca. Рядом начато строительства 2 очереди комплекса. 2680 квартир, 1500 квартир во второй очереди строительства. Развитая транспортная доступность, до станции м. Октябрьское поле, 15 минут ходьбы. В окружение объекта располагается: Красно-Белое, Винлаб, Ароматный мир, Вайлдберис.

Технические параметры:
Первый этаж с витринными окнами 25-ти этажного жилого дома, площадью 64 м2. Отдельный вход с большим трафиком, свободная планировка. Высота потолков 5.5 м, количество электроэнергии 13 кВт с возможным увеличением до 25 кВт. Состояния помещения - бетон.

Коммерческие условия:
Стоимость аренды - 330 000 рублей.
Стоимость аренды за кв.м. - 5 156 рублей.

Технические характеристики

Тип здания: С отдельным входом,Торговая,Общепит,Медицина

Общая площадь: 64  м2

Этаж: 1

Всего этажей: 25

Электрическая мощность: 13 кВт

Высота потолков: 5.5 м

Парковка: -

Коммерческие условия

Цена в месяц: 330 000 RUB

ФОРМА ВЛАДЕНИЯ: Физ. лицо

карта

Расположение

Адрес: Москва, ул. Берзарина, 32

Округ: Северо-Западный административный округ

Близость метро: Октябрьское Поле

Транспортная доступность: -

Окружение

Торговое окружение: -

Адрес:

Москва, ул. Берзарина, 32

Округ:

Северо-Западный административный округ

Близость метро:

Октябрьское Поле

Транспортная доступность:

-

карта

Торговое окружение:

-

Общая площадь:

64  м2

Этаж:

1

Всего этажей:

25

Тип:

С отдельным входом,Торговая,Общепит,Медицина

Электрическая мощность:

13 кВт

Высота потолков:

5.5 м

Парковка:

-

ФОРМА ВЛАДЕНИЯ:

Физ. лицо

Цена в месяц:

330 000 RUB

Планировка

Александр Невский

Ваш брокер по работе с клиентами

Найдите лучшее место
для жизни, бизнеса, инвестиций

Оставьте свои контакты — с вами свяжется руководитель отдела для презентации нужного вам объекта

Похожие объекты