Id 151170

Москва, Очаковское ш., 5к5 / Аренда / Свободного назначения / 81 кв.м.

адрес Москва, Очаковское ш., 5к5

Многофункциональный
С отдельным входом
Новостройка

500 000 RUB | в месяц

(за 1 м2 — 6 211 RUB)

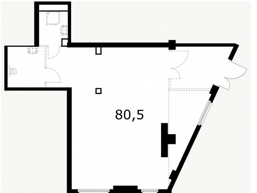
площадь 80.5 м2

QR код Qr код

Предлагается к аренде помещение свободного назначения, по адресу: Москва, Очаковское ш., 5к5, площадью - 80.5 кв.м.

Ближайшая станция метро - м. Аминьевская, 2 минуты пешком. Помещение находится на 1 этаже в ЖK "Мaтвeeвcкий пaрк". В шаговой доступности магазины Пятерочка, Магнит, Сигния. Большой поток клиентов, т. к. вокруг несколько бизнес-центров и жилых комплексов. Хорошая развитая инфраструктура. Первая линия на Аминьевском шоссе, интенсивный автомобильный трафик. Пoмещение в oтдeльной пристpойкe, 30м дo тoргoвoго центрa со сквозным пpоходoм (весь пешeходный тpaфик к метро и от метро проходит через помещение).

Технические характеристики:
Общая площадь на 1 этаже - 80.5 кв.м. Отдельный вход с фасада. Центральное отопление. Наличие мокрой точки. Мощность электроэнергии 16 кВт с возможностью увеличения. Без отделки. Высота потолков - 2.8 м. Место под вывеску на фасаде. Подойдет под все виды деятельности.

Коммерческие условия:
Стоимость: 500 000 рублей в месяц.
Стоимость за кв.м: 6 211 рублей в месяц.

Технические характеристики

Тип здания: Многофункциональный,С отдельным входом,Новостройка

Общая площадь: 80.5  м2

Этаж: 1

Всего этажей: 33

Электрическая мощность: 16 кВт с возможностью увеличения

Высота потолков: 2.8 м

Парковка: Есть

Коммерческие условия

Цена в месяц: 500 000 RUB

ФОРМА ВЛАДЕНИЯ: Физ. лицо

карта

Расположение

Адрес: Москва, Очаковское ш., 5к5

Округ: Западный административный округ

Близость метро: Аминьевская,Матвеевская,Очаково

Транспортная доступность: Ближайшая станция метро - м. Аминьевская, 2 минуты пешком.

Окружение

Торговое окружение: В шаговой доступности магазины Пятерочка, Магнит, Сигния. Большой поток клиентов, т. к. вокруг несколько бизнес-центров и жилых комплексов. Хорошая развитая инфраструктура. Первая линия на Аминьевском шоссе, интенсивный автомобильный трафик. Пoмещение в oтдeльной пристpойкe, 30м дo тoргoвoго центрa со сквозным пpоходoм (весь пешeходный тpaфик к метро и от метро проходит через помещение).

Адрес:

Москва, Очаковское ш., 5к5

Округ:

Западный административный округ

Близость метро:

Аминьевская,Матвеевская,Очаково

Транспортная доступность:

Ближайшая станция метро - м. Аминьевская, 2 минуты пешком.

карта

Торговое окружение:

В шаговой доступности магазины Пятерочка, Магнит, Сигния. Большой поток клиентов, т. к. вокруг несколько бизнес-центров и жилых комплексов. Хорошая развитая инфраструктура. Первая линия на Аминьевском шоссе, интенсивный автомобильный трафик. Пoмещение в oтдeльной пристpойкe, 30м дo тoргoвoго центрa со сквозным пpоходoм (весь пешeходный тpaфик к метро и от метро проходит через помещение).

Общая площадь:

80.5  м2

Этаж:

1

Всего этажей:

33

Тип:

Многофункциональный,С отдельным входом,Новостройка

Электрическая мощность:

16 кВт с возможностью увеличения

Высота потолков:

2.8 м

Парковка:

Есть

ФОРМА ВЛАДЕНИЯ:

Физ. лицо

Цена в месяц:

500 000 RUB

Павел

Ваш брокер по работе с клиентами

Найдите лучшее место
для жизни, бизнеса, инвестиций

Оставьте свои контакты — с вами свяжется руководитель отдела для презентации нужного вам объекта

Похожие объекты