Id 151062

Москва, ул. Летниковская, д.18с1 - 916 кв.м. - Продажа ОСЗ / ГАБ

адрес Летниковская улица, 18с1

Арендный бизнес
Особняк/здание
С отдельным входом
Торговая
Офис
Общепит
Редевелопмент
Отель/Хостел

Окупаемость: 7.7 лет

Доходность:13.04%

210 000 000 RUB | за все

(за 1 м2 — 229 258 RUB)

площадь 916.0 м2

QR код Qr код

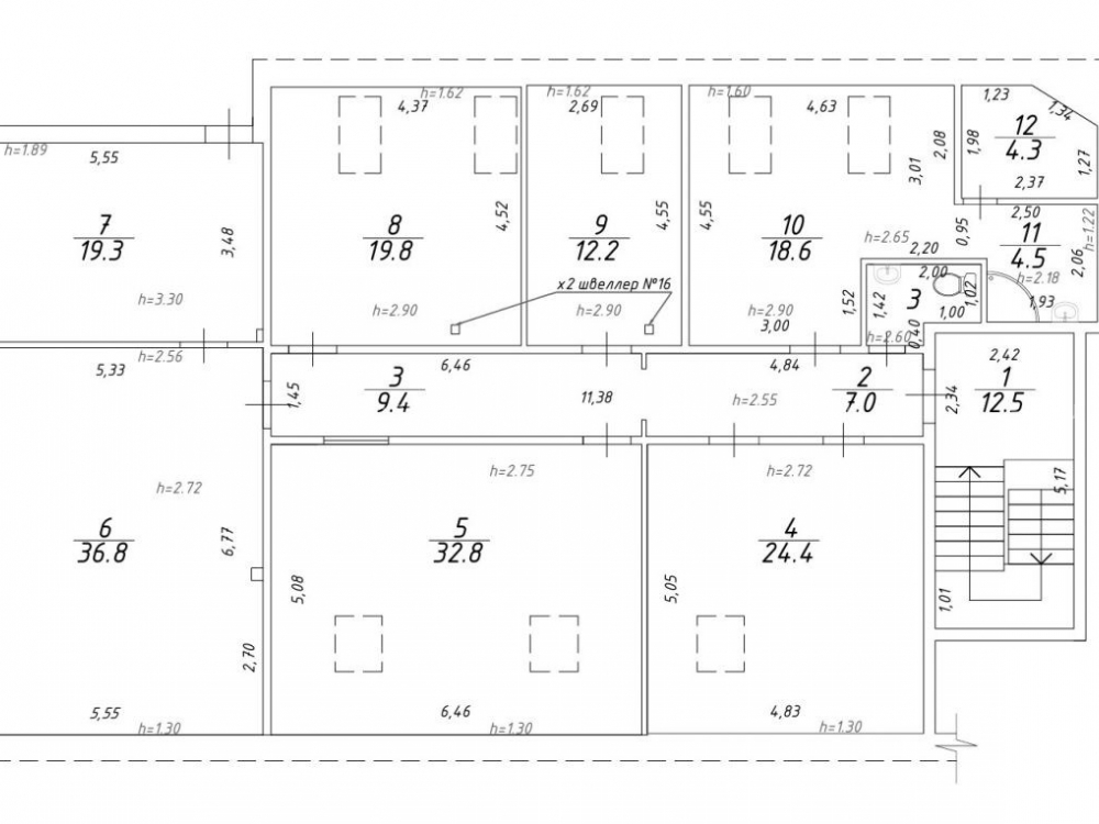
Продается отдельно-стоящее здание (ОСЗ) площадью 916 кв.м. по адресу: Москва, ул. Летниковская , д.18, стр.1. Здание имеет 3 уровня: два этажа и мансарда. Плотный жилой массив, рядом ЖК Mitte, ЖК Level Павелецкая и ЖК HIGH LIFE. До метро Павелецкая 15 минут пешком.

Технические характеристики:
Общая площадь здания - 916 кв.м. 1 этаж - 356 кв.м., 2 этаж - 370 кв.м. и мансарда - 190 кв.м.
Мощность электроэнергии - 45 кВт. В процессе увеличения до 145 кВт. Отопление индивидуальное, своя газовая котельная. Канализация городская. Горячая вода из котельни. Перекрытия ж/б. Зальная планировка. Парковка на 8 машиномест. Высота потолка 3-3,6 м. Земля в аренде у города на 49 лет. Есть возможность арендовать по частям - поэтажно.
Есть отдельный вход на 2 этаж.

Коммерческие условия:
Цена объекта: 210 000 000 руб.
Цена 1 кв.м.: 207 423 руб.
МАП - 2 300 000 руб / ГАП - 27 600 000 руб.
Окупаемость - 7,6 лет.

Технические характеристики

Тип здания: Арендный бизнес,Особняк/здание,С отдельным входом,Торговая,Офис,Общепит,Редевелопмент,Отель/Хостел

Общая площадь: 916  м2

Этаж: 1

Всего этажей: 3

Электрическая мощность: 45 кВт

Высота потолков: 3 м.

Парковка: городская

Коммерческие условия

Цена за все: 210 000 000 RUB

ФОРМА ВЛАДЕНИЯ: ООО

Окупаемость: 7.7 лет

Доходность: 13.04%

карта

Расположение

Адрес: Летниковская улица, 18с1

Округ: Центральный административный округ

Близость метро: Павелецкая

Транспортная доступность: хорошая

Окружение

Торговое окружение: аптека, магазин, кафе

Адрес:

Летниковская улица, 18с1

Округ:

Центральный административный округ

Близость метро:

Павелецкая

Транспортная доступность:

хорошая

карта

Торговое окружение:

аптека, магазин, кафе

Общая площадь:

916  м2

Этаж:

1

Всего этажей:

3

Тип:

Арендный бизнес,Особняк/здание,С отдельным входом,Торговая,Офис,Общепит,Редевелопмент,Отель/Хостел

Электрическая мощность:

45 кВт

Высота потолков:

3 м.

Парковка:

городская

ФОРМА ВЛАДЕНИЯ:

ООО

Цена за все:

210 000 000 RUB

Окупаемость:

7.7 лет

Доходность:

13.04%

Планировка

Петр Соловьев

Ваш брокер по работе с клиентами

Найдите лучшее место
для жизни, бизнеса, инвестиций

Оставьте свои контакты — с вами свяжется руководитель отдела для презентации нужного вам объекта

Похожие объекты