Id 149854

Таллинская улица, 26 - 113,5 кв. м. - Аренда / Помещение свободного назначения (ПСН)

адрес Москва, Таллинская улица, 26

Многофункциональный
С отдельным входом
Торговая

500 000 RUB | в месяц

(за 1 м2 — 4 405 RUB)

площадь 113.5 м2

QR код Qr код

В аренду предлагается помещение свободного назначения по адресу: г. Москва, СЗАО, район Строгино, Таллинская улица, 26. Ближайшие станции метро: Строгино – 5 мин. пешком, Мякинино и Спартак – 30 мин. пешком. Первая линия домов. Густонаселенный район. Высокий автомобильный и пешеходный трафик. Возможность размещения рекламы на фасаде.

Торговое окружение:
Рядом расположены супермаркет Пятерочка, магазин подарков и сувениров Веселая Затея, быстрое питание Донеретто, магазин обуви ZENDEN, магазин ткани Декольте, товары для рыбалки, парикмахерская, вейп – шоп SuperSmoke, СберБанк, салон оптики Окомед, магазин хозтоваров и бытовой техники, магазин цветов СоюзЦветТорг, пункт выдачи Мегамаркет, магазин продуктов Хороший, кофейня Сладкая параллель, пекарня Буфет.

Технические характеристики:
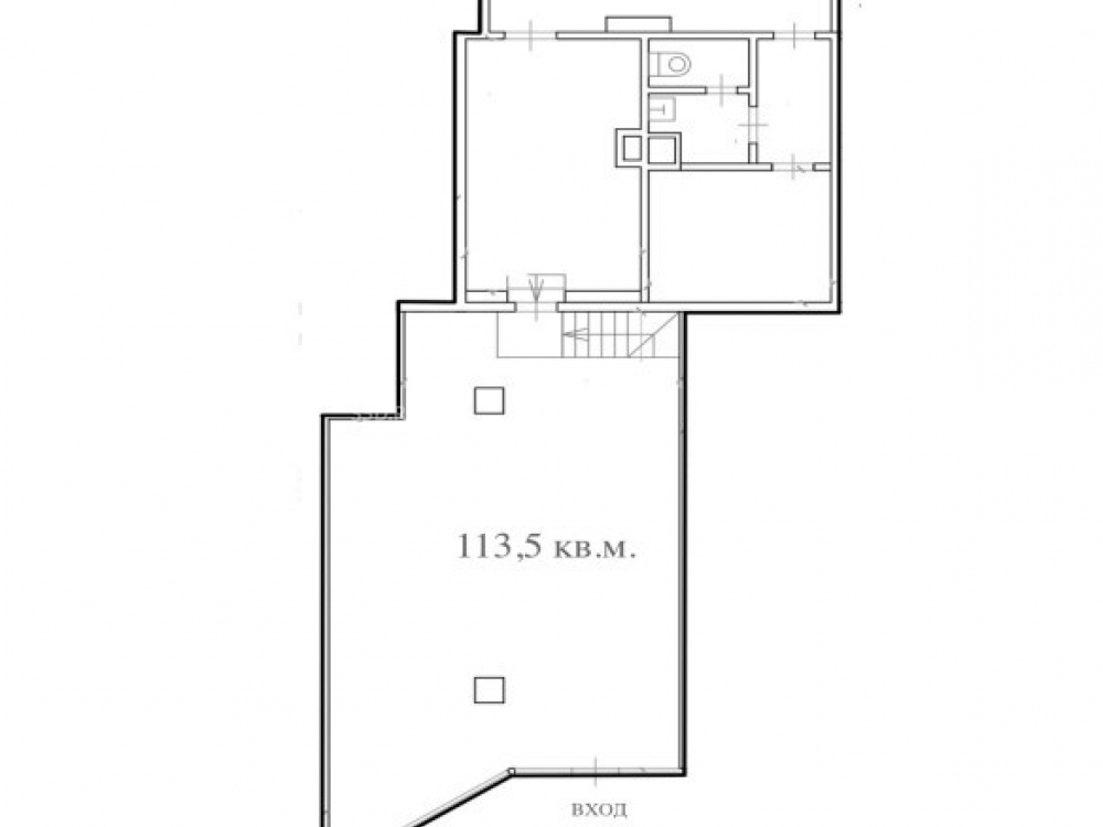
Помещение общей площадью – 113.5 кв. м., 1 этаж.
Отдельный вход с фасада. Витринное остекление. Смешанная планировка. Высота потолков – 3,3 м. Электрическая мощность – по запросу. Все центральные коммуникации, (заключены прямые договоры). Парковка перед фасадом.

Коммерческие условия:
Арендная ставка – 500 000 рублей в месяц.
Ставка за 1 кв. м. – 4 405 рублей в месяц.
Ставка за 1 кв. м. – 52 863 рубля в год.
Форма договора: прямой долгосрочный договор аренды.
Вид налогообложения – УСН.
Коммунальные расходы оплачиваются отдельно.

Технические характеристики

Тип здания: Многофункциональный,С отдельным входом,Торговая

Общая площадь: 113.5  м2

Этаж: 1

Всего этажей: 3

Электрическая мощность: по запросу

Высота потолков: 3

Парковка: по фасаду

Коммерческие условия

Цена в месяц: 500 000 RUB

ФОРМА ВЛАДЕНИЯ: -

карта

Расположение

Адрес: Москва, Таллинская улица, 26

Округ: Северо-Западный административный округ

Близость метро: Мякинино,Спартак,Строгино

Транспортная доступность: Ближайшие станции метро: Строгино – 5 мин. пешком, Мякинино и Спартак – 30 мин. пешком.

Окружение

Торговое окружение: Рядом расположены супермаркет Пятерочка, магазин подарков и сувениров Веселая Затея, быстрое питание Донеретто, магазин обуви ZENDEN, магазин ткани Декольте, товары для рыбалки, парикмахерская, вейп – шоп SuperSmoke, СберБанк, салон оптики Окомед, магазин хозтоваров и бытовой техники, магазин цветов СоюзЦветТорг, пункт выдачи Мегамаркет, магазин продуктов Хороший, кофейня Сладкая параллель, пекарня Буфет.

Адрес:

Москва, Таллинская улица, 26

Округ:

Северо-Западный административный округ

Близость метро:

Мякинино,Спартак,Строгино

Транспортная доступность:

Ближайшие станции метро: Строгино – 5 мин. пешком, Мякинино и Спартак – 30 мин. пешком.

карта

Торговое окружение:

Рядом расположены супермаркет Пятерочка, магазин подарков и сувениров Веселая Затея, быстрое питание Донеретто, магазин обуви ZENDEN, магазин ткани Декольте, товары для рыбалки, парикмахерская, вейп – шоп SuperSmoke, СберБанк, салон оптики Окомед, магазин хозтоваров и бытовой техники, магазин цветов СоюзЦветТорг, пункт выдачи Мегамаркет, магазин продуктов Хороший, кофейня Сладкая параллель, пекарня Буфет.

Общая площадь:

113.5  м2

Этаж:

1

Всего этажей:

3

Тип:

Многофункциональный,С отдельным входом,Торговая

Электрическая мощность:

по запросу

Высота потолков:

3

Парковка:

по фасаду

ФОРМА ВЛАДЕНИЯ:

-

Цена в месяц:

500 000 RUB

Планировка

Ирина Головина

Ваш брокер по работе с клиентами

Найдите лучшее место
для жизни, бизнеса, инвестиций

Оставьте свои контакты — с вами свяжется руководитель отдела для презентации нужного вам объекта

Похожие объекты