Id 14976

Москва, ЦАО, Озерковская набережная, 12 /960 м2/ Аренда особняка/

адрес Москва, ЦАО, Озерковская набережная, 12

Особняк/здание
Офис

2 878 500 RUB | в месяц

(за 1 м2 — 2 998 RUB)

площадь 960.0 м2

QR код Qr код

Аренда особняка в пешей доступности на расстоянии 600 метров расположена станция метро «Новокузнецкая».
Для автомобилистов особняк имеет удачное расположение относительно основных транспортных развязок: в 350 метрах расположено Бульварное кольцо, а в 1 км. – Садовое.
Торговое окружение: Рядом работают кофейни, рестораны, суши-бары и пабы, юридические, нотариальные, адвокатские и бухгалтерские конторы, турагентства, дом бытовых услуг, фотоцентр.

Технические характеристики:
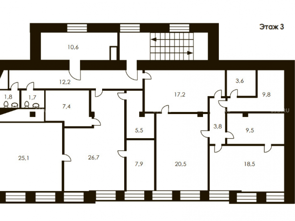
Общая площадь: 960 квадратных метров;
Высота потолков: 3-5 метров.
Кабинетная планировка.
Офисный ремонт.
Здание оборудовано приточно-вытяжной системой вентиляции, сплит-системой кондиционирования, спринклерной системой пожаротушения, охранной сигнализацией, есть камеры видеонаблюдения и системы контроля доступа.
Круглосуточная охрана.
Паркинг только городской.
Юpидический aдрес пpeдоcтaвляетcя беcплатно.
Особняк построен в 1903 и реконструирован в 2006 году.

Коммерческие условия:
Стоимость аренды в месяц:2 878 500 рублей (НДС + эксплуатационные расходы уборка. охрана и техническое обслуживание включены).
Арендная ставка за 1 квадратный метр в год: 2 500 000 рублей.
Коммунальные услуги и электроэнергия оплачиваются отдельно.
При заключении договора вносится предоплата за два месяца.
Арендные каникулы предоставляются при необходимости.
Условия сделки обсуждаются на переговорах.

Технические характеристики

Тип здания: Особняк/здание,Офис

Общая площадь: 960  м2

Этаж: 1

Всего этажей: 4

Электрическая мощность: -

Высота потолков: 3-4 м.

Парковка: Да / на улице

Коммерческие условия

Цена в месяц: 2 878 500 RUB

ФОРМА ВЛАДЕНИЯ: ООО НДС

карта

Расположение

Адрес: Москва, ЦАО, Озерковская набережная, 12

Округ: Центральный административный округ

Близость метро: Новокузнецкая

Транспортная доступность: Метро Новокузнецкая

Окружение

Торговое окружение: -

Адрес:

Москва, ЦАО, Озерковская набережная, 12

Округ:

Центральный административный округ

Близость метро:

Новокузнецкая

Транспортная доступность:

Метро Новокузнецкая

карта

Торговое окружение:

-

Общая площадь:

960  м2

Этаж:

1

Всего этажей:

4

Тип:

Особняк/здание,Офис

Электрическая мощность:

-

Высота потолков:

3-4 м.

Парковка:

Да / на улице

ФОРМА ВЛАДЕНИЯ:

ООО НДС

Цена в месяц:

2 878 500 RUB

Планировка

Инна Васильева

Ваш брокер по работе с клиентами

Найдите лучшее место
для жизни, бизнеса, инвестиций

Оставьте свои контакты — с вами свяжется руководитель отдела для презентации нужного вам объекта

Похожие объекты