Id 149443

Волгоградский пр-кт. 105 - 485,2 м² / Продажа готового арендного бизнеса / Магнолия

адрес Москва, Волгоградский пр-кт, 105

Арендный бизнес
Многофункциональный
Особняк/здание
С отдельным входом
Торговая

Окупаемость: 11.2 лет

Доходность:8.96%

120 000 000 RUB | за все

(за 1 м2 — 247 321 RUB)

площадь 485.2 м2

QR код Qr код

Продажа помещения с арендатором супермаркет Магнолия (режим работы 24 часа), по адресу: Волгоградский проспект, д. 105. ЮВАО, район Кузьминки. Ближайшая станция метро Кузьминки 5 минут пешком. Напротив входа - автобусная остановка, а также подземный переход на противоположную сторону. Первая линия, плотная жилая застройка, густонаселённый жилой массив. Устойчивый пешеходный и автомобильный трафик.
Торговое окружение: Пятёрочка, отель Benvenuti, Плов центр, аптека Здравсити, Wildberries, страховая компания.

Технические параметры
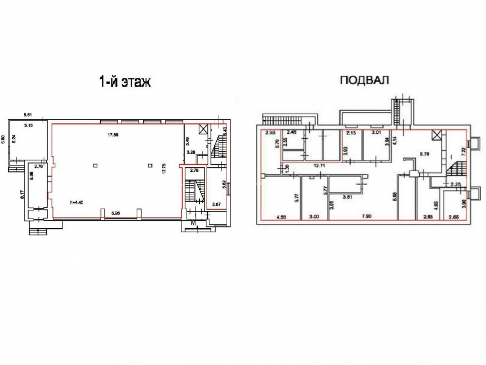
1-ый этаж и подвал 2-этажного отдельно стоящего здания. Общая площадь: 485,2 м² (Первый этаж: 262 м², подвал 223,2 м²). 2 отдельных входа, зона разгрузки, большие полноразмерные витрины вдоль всего фасада, оснащено необходимыми коммуникациями, высота потолков: 3,3 метра, получена алколицензия.

Коммерческие условия:
Стоимость помещения: 120 000 000 руб. (УСН)
Цена за 1 м²: 247 321 руб.
МАП - 900 000 руб. (супермаркет Магнолия, ДДА до 2035г).
ГАП - 10 800 000 руб.
Форма сделки: ДКПН (УСН).

Технические характеристики

Тип здания: Арендный бизнес,Многофункциональный,Особняк/здание,С отдельным входом,Торговая

Общая площадь: 485.2  м2

Этаж: 1

Всего этажей: 2

Электрическая мощность: 30 кВт

Высота потолков: 3,3 метра

Парковка: Городская

Коммерческие условия

Цена за все: 120 000 000 RUB

ФОРМА ВЛАДЕНИЯ: ИП (УСН)

Общий МАП: 900 000 RUB (данный МАП является минимальным, при оптимизации арендаторов арендный поток можно значительно увеличить)

Общий ГАП: 10 800 000 RUB

Окупаемость: 11.2 лет

Доходность: 8.96%

карта

Расположение

Адрес: Москва, Волгоградский пр-кт, 105

Округ: Юго-Восточный административный округ

Близость метро: Кузьминки,Текстильщики

Транспортная доступность: 5 мин. пешком от м. Кузьминки

Окружение

Торговое окружение: Пятёрочка, отель Benvenuti, Плов центр, аптека Здравсити, Wildberries, страховая компания.

Адрес:

Москва, Волгоградский пр-кт, 105

Округ:

Юго-Восточный административный округ

Близость метро:

Кузьминки,Текстильщики

Транспортная доступность:

5 мин. пешком от м. Кузьминки

карта

Торговое окружение:

Пятёрочка, отель Benvenuti, Плов центр, аптека Здравсити, Wildberries, страховая компания.

Общая площадь:

485.2  м2

Этаж:

1

Всего этажей:

2

Тип:

Арендный бизнес,Многофункциональный,Особняк/здание,С отдельным входом,Торговая

Электрическая мощность:

30 кВт

Высота потолков:

3,3 метра

Парковка:

Городская

ФОРМА ВЛАДЕНИЯ:

ИП (УСН)

Цена за все:

120 000 000 RUB

Общий МАП: 900 000

(данный МАП является минимальным, при оптимизации арендаторов арендный поток можно значительно увеличить)

Общий ГАП:

10 800 000

Окупаемость:

11.2 лет

Доходность:

8.96%

Планировка

Дмитриев Александр

Ваш брокер по работе с клиентами

Найдите лучшее место
для жизни, бизнеса, инвестиций

Оставьте свои контакты — с вами свяжется руководитель отдела для презентации нужного вам объекта

Похожие объекты