Id 149179

Наставнический переулок, 11 - 1 168 кв. м. - Продажа / ОСЗ

адрес Москва, Наставнический переулок, 11

Особняк/здание
С отдельным входом
Торговая

160 000 000 RUB | за все

(за 1 м2 — 136 986 RUB)

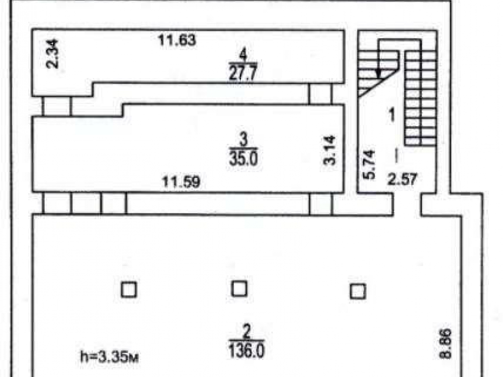
площадь 1 168.0 м2

QR код Qr код

Продается уникальный 4-этажный особняк в престижном районе Москвы по адресу: г. Москва, ЦАО, район Таганский, Наставнический переулок, 11. В шаговой доступности станции метро: Чкаловская – 9 мин. пешком, Курская – 10 мин. пешком. Особняк расположен на первой линии домов, в непосредственной близости от Садового кольца и набережных реки Яуза. В пешей доступности остановки общественного транспорта: автобусов, маршрутных такси и троллейбусов. Идеальное месторасположение: в самом сердце столицы в окружении бизнес-центров, ресторанов и культурных достопримечательностей. Это не просто место для работы – это точка притяжения для клиентов и партнеров!

Торговое окружение:
Рядом расположены сауна XI, пекарня Гурманка, медцентр Линия жизни, кофейня Monkey`s, магазин спецодежды БТК, бар Stoneside, кафе Наставник, стоматологическая клиника Ортофис, магазин пляжных товаров Intex.ru, банк СберПервый.

Технические характеристики:
Отдельно стоящее здание 1909 года постройки. Общая площадь – 1 168 кв. м. в 4-х уровнях, по экспликациям назначение офисное. Земельный участок площадью 288 кв. м., выделен под административные цели, находится в процессе переоформления. Отдельный вход с улицы. Высота потолков в 3 м создает ощущение простора и свободы. Стены кирпичные. Перекрытия ж/б. Евроремонт. Электрическая мощность – 289 кВт. (на здание). Все необходимые коммуникации: ХВС, ГВС, канализация, приточно-вытяжная вентиляция, высокоскоростной интернет, городской телефон и система видеонаблюдения. На территории есть парковка – наземная на 7 м/м, доступ в здание – пропускная система, в здании есть центральная рецепция.

Коммерческие условия:
Стоимость объекта – 180 000 000 рублей.
Стоимость за 1 кв. м. – 154 109 рублей.

Технические характеристики

Тип здания: Особняк/здание,С отдельным входом,Торговая

Общая площадь: 1168  м2

Этаж: 1

Всего этажей: 3

Электрическая мощность: 289 кВт

Высота потолков: 3 м

Парковка: наземная на 7 м/м

Коммерческие условия

Цена за все: 160 000 000 RUB

ФОРМА ВЛАДЕНИЯ: -

карта

Расположение

Адрес: Москва, Наставнический переулок, 11

Округ: Центральный административный округ

Близость метро: Курская,Чкаловская

Транспортная доступность: В шаговой доступности станции метро: Чкаловская – 9 мин. пешком, Курская – 10 мин. пешком.

Окружение

Торговое окружение: в окружении бизнес-центров, ресторанов и культурных достопримечательностей.

Адрес:

Москва, Наставнический переулок, 11

Округ:

Центральный административный округ

Близость метро:

Курская,Чкаловская

Транспортная доступность:

В шаговой доступности станции метро: Чкаловская – 9 мин. пешком, Курская – 10 мин. пешком.

карта

Торговое окружение:

в окружении бизнес-центров, ресторанов и культурных достопримечательностей.

Общая площадь:

1168  м2

Этаж:

1

Всего этажей:

3

Тип:

Особняк/здание,С отдельным входом,Торговая

Электрическая мощность:

289 кВт

Высота потолков:

3 м

Парковка:

наземная на 7 м/м

ФОРМА ВЛАДЕНИЯ:

-

Цена за все:

160 000 000 RUB

Планировка

Олег Байкин

Ваш брокер по работе с клиентами

Найдите лучшее место
для жизни, бизнеса, инвестиций

Оставьте свои контакты — с вами свяжется руководитель отдела для презентации нужного вам объекта

Похожие объекты