Id 148889

г Москва, Андроньевская пл, д 4 стр 1 площадь 1 770,4 м² Особняк продажа. Комплекс зданий.

адрес г Москва, Андроньевская пл, д 4 стр 1

Арендный бизнес
Многофункциональный
Особняк/здание
С отдельным входом

Окупаемость: 10.4 лет

Доходность:9.60%

600 000 000 RUB | за все

(за 1 м2 — 338 906 RUB)

площадь 1 770.4 м2

QR код Qr код

Предлагается на продажу Ансамбль из трех офисных строений класса «В» с готовым арендным бизнесом, расположенное в Таганском районе.
От ближайших станций метро «Площадь Ильича» и «Римская» до офисного здания порядка 700 метров (около десяти минут пешком). Автомобилистам будет удобно наличие рядом таких магистралей, как набережная реки Яузы, шоссе Энтузиастов, ул. Николоямская и Сергия Радонежского, а также Садового кольца, расположенного в 900 метрах. До Третьего транспортного кольца, Кремля и МКАД – 2 км, 3 км и 12 км соответственно.
Внутри огороженного двора расположена наземная парковка. На территории делового центра есть небольшое кафе. Внешняя инфраструктура прекрасно развита – в шаговой доступности расположены: сетевой супермаркет, ресторан, аптека, отделения почты и банков.
В настоящее время всю площадь арендует гос.корпорация. Долгосрочный договор аренды.

Технические характеристики:
В 2016 году произведена полная реконструкция зданий, включая:
- усиление фундамента,
- замену межэтажных перекрытий,
-замену всех коммуникаций.
-Установлены современные системы вентиляции, кондиционирования, отопления, видеонаблюдения, пожарной и охранной сигнализациями.
-одноэтажное строение 170 кв.м., требует реконструкции.
Удобная и функциональная планировка.
- Уютный внутренний дворик с парковкой на 20 а/м и зоной отдыха.

Коммерческие Условия:
Стоимость - 600 000 000 рублей;
Стоимость за 1 кв.м. - 338 906,4 рублей;
Арендатор: Госструктура

Продажа по ДКП .
Условия сделки обсуждаются на переговорах.

Технические характеристики

Тип здания: Арендный бизнес,Многофункциональный,Особняк/здание,С отдельным входом

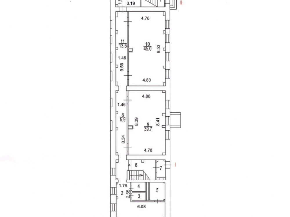
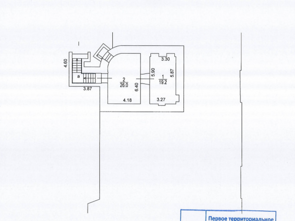
Общая площадь: 1770.4  м2

Этаж: 1

Всего этажей: 3

Электрическая мощность: по запросу

Высота потолков: 4

Парковка: 20

Коммерческие условия

Цена за все: 600 000 000 RUB

ФОРМА ВЛАДЕНИЯ: ООО на УСН

Общий МАП: 4 827 701 RUB (данный МАП является минимальным, при оптимизации арендаторов арендный поток можно значительно увеличить)

Общий ГАП: 57 932 412 RUB

Окупаемость: 10.4 лет

Доходность: 9.60%

карта

Расположение

Адрес: г Москва, Андроньевская пл, д 4 стр 1

Округ: Центральный административный округ

Близость метро: Площадь Ильича,Римская

Транспортная доступность: ТТК / Садовое / Метро

Окружение

Торговое окружение: Хорошее

Адрес:

г Москва, Андроньевская пл, д 4 стр 1

Округ:

Центральный административный округ

Близость метро:

Площадь Ильича,Римская

Транспортная доступность:

ТТК / Садовое / Метро

карта

Торговое окружение:

Хорошее

Общая площадь:

1770.4  м2

Этаж:

1

Всего этажей:

3

Тип:

Арендный бизнес,Многофункциональный,Особняк/здание,С отдельным входом

Электрическая мощность:

по запросу

Высота потолков:

4

Парковка:

20

ФОРМА ВЛАДЕНИЯ:

ООО на УСН

Цена за все:

600 000 000 RUB

Общий МАП: 4 827 701

(данный МАП является минимальным, при оптимизации арендаторов арендный поток можно значительно увеличить)

Общий ГАП:

57 932 412

Окупаемость:

10.4 лет

Доходность:

9.60%

Планировка

Назарова Олеся

Ваш брокер по работе с клиентами

Найдите лучшее место
для жизни, бизнеса, инвестиций

Оставьте свои контакты — с вами свяжется руководитель отдела для презентации нужного вам объекта

Похожие объекты