Id 14872

ул. Дубнинская, д. 14к2 - 73.8 кв.м / Продажа Готового Арендного Бизнеса / Красное и Белое

адрес Москва, Дубнинская, 14к2

Арендный бизнес
Торговая

Окупаемость: 12.2 лет

Доходность:8.22%

29 000 000 RUB | за все

(за 1 м2 — 392 954 RUB)

площадь 73.8 м2

QR код Qr код

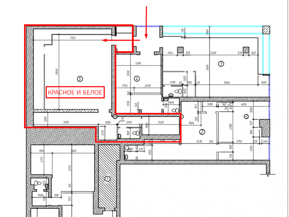
Продается Готовый Арендный Бизнес с сетевым арендатором - федеральная сеть алкомаркетов Красное и Белое. Торговое помещение находится на Первом этаже встроенно пристроенной части к 14-ти этажному жилому дому. Две минуты пешком от МЦД Дегунино. Густонаселённый жилой массив в САО Москвы. Первая линия домов. Рядом свободная парковка.
Адрес: г. Москва, ул. Дубнинская, д. 14к2.

Действующий арендатор:
Федеральная сеть Красное и Белое, долгосрочный договор аренды до 08.08.2030 г., МАП -200 000 рублей, индексация 10% по соглашению сторон. Коммунальные услуги компенсируются арендатором.

В помещение отдельный фасадный вход. Зальная планировка. Большие витринные окна. Высота потолков 3.35 м, электрическая мощность - 20 кВт.
В соседнем доме находятся супермаркет Пятёрочка, Почта России, Почта Банк, что является источником трафика покупателей.
Соседние помещения занимают: Аптека Горздрав, Пекарня Маковка, Магазин мясной продукции, Суши Сет, Вайлдбериз.

Коммерческие условия:
Общая площадь - 73.8 кв.м.;
МАП - 200 000 рублей (с НДС), ГАП - 2 400 000 рублей;
Окупаемость - 12 лет; Доходность - 8.3%;
Стоимость - 29 000 000 рублей (с НДС);
Стоимость за 1 кв.м. - 399 729 рублей;
Форма собственности - физ. лицо.

Технические характеристики

Тип здания: Арендный бизнес,Торговая

Общая площадь: 73.8  м2

Этаж: 1

Всего этажей: 14

Электрическая мощность: 20 кВт

Высота потолков: 3.35 м

Парковка: -

Коммерческие условия

Цена за все: 29 000 000 RUB

ФОРМА ВЛАДЕНИЯ: ООО

Общий МАП: 200 000 RUB (данный МАП является минимальным, при оптимизации арендаторов арендный поток можно значительно увеличить)

Общий ГАП: 2 400 000 RUB

Окупаемость: 12.2 лет

Доходность: 8.22%

карта

Расположение

Адрес: Москва, Дубнинская, 14к2

Округ: Северный административный округ

Близость метро: Верхние Лихоборы,Дегунино,Селигерская

Транспортная доступность: -

Окружение

Торговое окружение: Аптека Горздрав, Пекарня Маковка, Магазин мясной продукции, Суши Сет, Вайлдбериз.

Адрес:

Москва, Дубнинская, 14к2

Округ:

Северный административный округ

Близость метро:

Верхние Лихоборы,Дегунино,Селигерская

Транспортная доступность:

-

карта

Торговое окружение:

Аптека Горздрав, Пекарня Маковка, Магазин мясной продукции, Суши Сет, Вайлдбериз.

Общая площадь:

73.8  м2

Этаж:

1

Всего этажей:

14

Тип:

Арендный бизнес,Торговая

Электрическая мощность:

20 кВт

Высота потолков:

3.35 м

Парковка:

-

ФОРМА ВЛАДЕНИЯ:

ООО

Цена за все:

29 000 000 RUB

Общий МАП: 200 000

(данный МАП является минимальным, при оптимизации арендаторов арендный поток можно значительно увеличить)

Общий ГАП:

2 400 000

Окупаемость:

12.2 лет

Доходность:

8.22%

Планировка

Николай

Ваш брокер по работе с клиентами

Найдите лучшее место
для жизни, бизнеса, инвестиций

Оставьте свои контакты — с вами свяжется руководитель отдела для презентации нужного вам объекта

Похожие объекты