Id 147817

Солнечногорский район, Тверецкий проезд, 16к1 ЖК Первый Зеленоградский / Площадь 243,2 м2 / Продажа ПСН

адрес Солнечногорский район, д.Голубое, Тверецкий проезд, 16к1 ЖК Первый Зеленоградский

Многофункциональный
С отдельным входом
Торговая
Офис
Общепит
Жилой комплекс (мфк)
Новостройка
Медицина

13 862 400 RUB | за все

(за 1 м2 — 57 000 RUB)

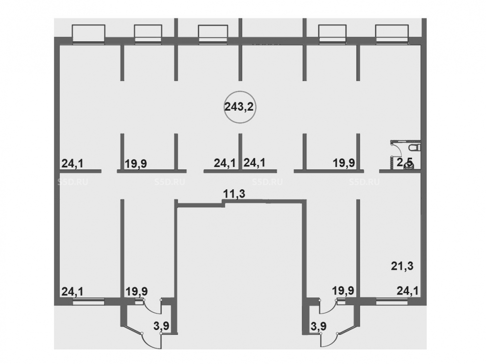
площадь 243.2 м2

QR код Qr код

Продается нежилое помещение свободного назначения в сданном корпусе ЖК "Первый Зеленоградский" по адресу: Сонечногорский ГО, д.Голубое, Тверецкий проезд, 16к1 площадью 243,2 м2. Объект расположен в окружении плотного жилого массива. Крупнейший жилой комплекс «Первый Зеленоградский» рассчитан на 18000 человек, располагается в 2-х км от Зеленограда. Это новый современный ЖК, обжитый микрорайон с высокой плотностью застройки, состоящий из 3-х очередей строительства на 390 000 кв.м. Предусмотрены детские сады и школы. ЖК заселен на 100%, все корпуса сданы, Удобная транспортная связь с центром города и доступ к развитой инфраструктуре, в 15 минутах езды от станции "Крюково".

Торговое окружение: Стоматология, Ситилаб, Прачечная, Ветеринарная клиника, Зоомагазин, Вкусвилл, Магнит и др.

Технические параметры:
1 этаж 17- ти этажного сданного жилого дома, общей площадью 243,2 м2. Кабинетная планировка. Панельный дом. Высота потолков 3,3 метров. Выделенная электрическая мощность по запросу. Городские коммуникации.

Коммерческие условия:
Стоимость объекта: 13 862 400 рублей.
Стоимость объекта за м2: 57 000 рублей.

Технические характеристики

Тип здания: Многофункциональный,С отдельным входом,Торговая,Офис,Общепит,Жилой комплекс (мфк),Новостройка,Медицина

Общая площадь: 243.2  м2

Этаж: 1

Всего этажей: 17

Электрическая мощность: -

Высота потолков: 3.3 м

Парковка: -

Коммерческие условия

Цена за все: 13 862 400 RUB

ФОРМА ВЛАДЕНИЯ: -

карта

Расположение

Адрес: Солнечногорский район, д.Голубое, Тверецкий проезд, 16к1 ЖК Первый Зеленоградский

Округ: Северо-Восточный административный округ

Близость метро: Ховрино

Транспортная доступность: 15 минут езды от станции

Окружение

Торговое окружение: -

Адрес:

Солнечногорский район, д.Голубое, Тверецкий проезд, 16к1 ЖК Первый Зеленоградский

Округ:

Северо-Восточный административный округ

Близость метро:

Ховрино

Транспортная доступность:

15 минут езды от станции

карта

Торговое окружение:

-

Общая площадь:

243.2  м2

Этаж:

1

Всего этажей:

17

Тип:

Многофункциональный,С отдельным входом,Торговая,Офис,Общепит,Жилой комплекс (мфк),Новостройка,Медицина

Электрическая мощность:

-

Высота потолков:

3.3 м

Парковка:

-

ФОРМА ВЛАДЕНИЯ:

-

Цена за все:

13 862 400 RUB

Планировка

Лев

Ваш брокер по работе с клиентами

Найдите лучшее место
для жизни, бизнеса, инвестиций

Оставьте свои контакты — с вами свяжется руководитель отдела для презентации нужного вам объекта

Похожие объекты