Id 147004

Москва, бульвар Энштейна, д. 3/ 56 м2/Аренда ПСН

адрес МО, ЗАО, Новоивановское, бульвар Энштейна, д. 3

С отдельным входом
Торговая
Новостройка

130 000 RUB | в месяц

(за 1 м2 — 2 321 RUB)

площадь 56.0 м2

QR код Qr код

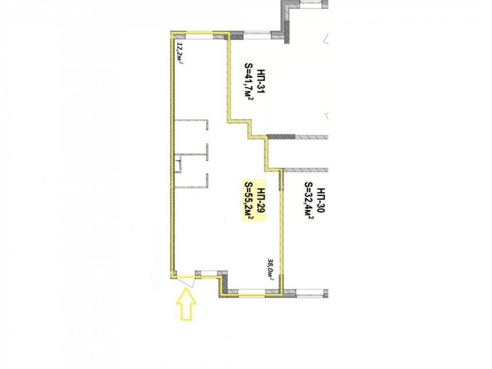
Аренда нежилого помещения свободного назначения по адресу: МО, Новоивановское, бул. Энштейна, д. 3, площадью 56 м2. Отдельный вход. Объект находится в ЖК "Инновация" (5 000 тыс. квартир), высотные дома, плотная застройка.

Технические параметры:
1 этаж 25-этажного жилого дома, общей площадью 56м2. Высота потолков - 3 м; Мощность электроэнергии - 10 кВт (возможно увеличение). Городские коммуникации. Зальная планировка.

Коммерческие условия:
Стоимость аренды: 130 000 рублей.
Стоимость объекта за м2: 2 143 рубля.

Технические характеристики

Тип здания: С отдельным входом,Торговая,Новостройка

Общая площадь: 56  м2

Этаж: 1

Всего этажей: 25

Электрическая мощность: 10 кВТ (возможно увеличить)

Высота потолков: 3

Парковка: на улице

Коммерческие условия

Цена в месяц: 130 000 RUB

ФОРМА ВЛАДЕНИЯ: -

карта

Расположение

Адрес: МО, ЗАО, Новоивановское, бульвар Энштейна, д. 3

Округ: Западный административный округ

Близость метро: Славянский бульвар

Транспортная доступность: -

Окружение

Торговое окружение: -

Адрес:

МО, ЗАО, Новоивановское, бульвар Энштейна, д. 3

Округ:

Западный административный округ

Близость метро:

Славянский бульвар

Транспортная доступность:

-

карта

Торговое окружение:

-

Общая площадь:

56  м2

Этаж:

1

Всего этажей:

25

Тип:

С отдельным входом,Торговая,Новостройка

Электрическая мощность:

10 кВТ (возможно увеличить)

Высота потолков:

3

Парковка:

на улице

ФОРМА ВЛАДЕНИЯ:

-

Цена в месяц:

130 000 RUB

Планировка

Александр Невский

Ваш брокер по работе с клиентами

Найдите лучшее место
для жизни, бизнеса, инвестиций

Оставьте свои контакты — с вами свяжется руководитель отдела для презентации нужного вам объекта

Похожие объекты