Id 143670

Алтуфьевское шоссе 14 - 1100 кв.м. - продажа ГАБ

адрес Москва, Алтуфьевское шоссе 14

С отдельным входом
Торговая
Офис
Общепит

120 000 000 RUB | за все

(за 1 м2 — 109 091 RUB)

площадь 1 100.0 м2

QR код Qr код

Продажа помещения свободного назначения формата Street Retail в районе Отрадное. Первая линия. Пересечение Алтуфьевского шоссе и ул. Хачатуряна. Густонаселенный жилой массив. Рядом остановка общественного транспорта и пешеходный переход

Технические характеристики:
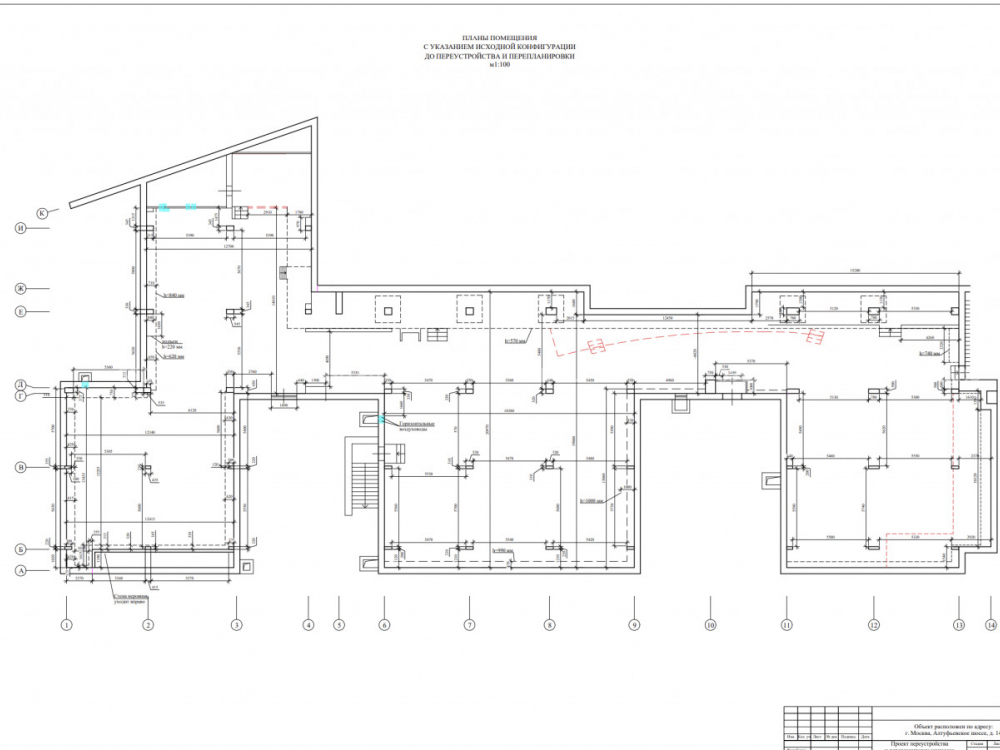
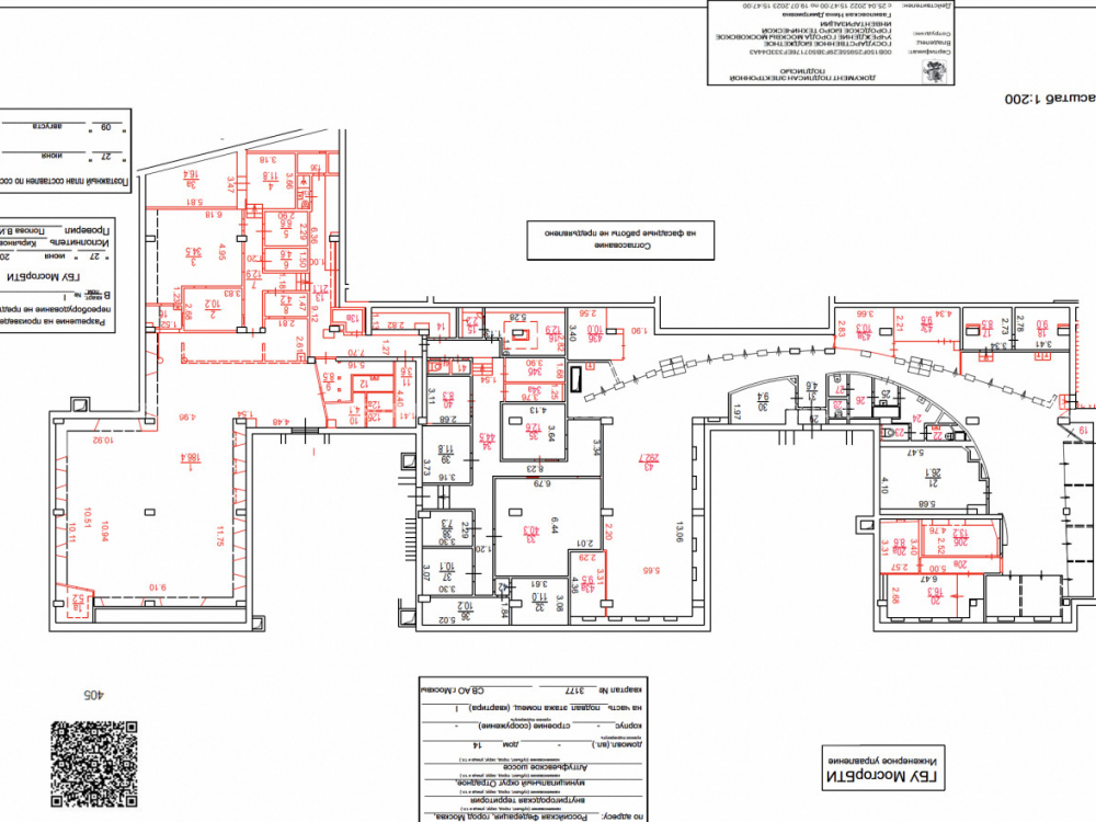
Подвал 12-ти этажного жилого дома. Общая площадь: 1100 кв.м. Три отдельных входа с фасада. Зальная планировка. Высота потолков: 3 метра. Эл. мощность 190 кВт. Вытяжка для общепита. Большая парковка перед фасадом.

Коммерческие условия:
Стоимость объекта: 120 000 000 рублей.
Арендаторы: Ремонт техники, МАП: 825 000 рублей, строительная компания, МАП: 380 000 рублей и вакантная площадь, МАП: 150 000 рублей.
МАП: 1 300 000 рублей. ГАП: 15 600 000 рублей.
Окупаемость: 7 лет.
Схема сделки: ДКПН.

Технические характеристики

Тип здания: С отдельным входом,Торговая,Офис,Общепит

Общая площадь: 1100  м2

Этаж: -1

Всего этажей: 12

Электрическая мощность: 190

Высота потолков: 3

Парковка: перед зданием

Коммерческие условия

Цена за все: 120 000 000 RUB

ФОРМА ВЛАДЕНИЯ: ООО

карта

Расположение

Адрес: Москва, Алтуфьевское шоссе 14

Округ: Северный административный округ

Близость метро: Отрадное

Транспортная доступность: метро Отрадное

Окружение

Торговое окружение: развитое

Адрес:

Москва, Алтуфьевское шоссе 14

Округ:

Северный административный округ

Близость метро:

Отрадное

Транспортная доступность:

метро Отрадное

карта

Торговое окружение:

развитое

Общая площадь:

1100  м2

Этаж:

-1

Всего этажей:

12

Тип:

С отдельным входом,Торговая,Офис,Общепит

Электрическая мощность:

190

Высота потолков:

3

Парковка:

перед зданием

ФОРМА ВЛАДЕНИЯ:

ООО

Цена за все:

120 000 000 RUB

Планировка

Чернов Андрей

Ваш брокер по работе с клиентами

Найдите лучшее место
для жизни, бизнеса, инвестиций

Оставьте свои контакты — с вами свяжется руководитель отдела для презентации нужного вам объекта

Похожие объекты