Id 139853

Шарикоподшипниковская улица, 13С23 - 7 285 м² - Аренда / Помещение свободного назначения (ПСН)

адрес Москва, Шарикоподшипниковская улица, 13С23

Многофункциональный
С отдельным входом
Торговая

3 035 750 RUB | в месяц

(за 1 м2 — 417 RUB)

площадь 7 285.8 м2

QR код Qr код

В аренду предлагается помещение свободного назначения по адресу: г. Москва, ЮВАО, Южнопортовый район, Шарикоподшипниковская улица, 13С23. В шаговой доступности станции метро: Дубровка – 13 мин., Угрешская – 11 мин. Удобная транспортная доступность. Близость транспортных магистралей: ТТК, Волгоградский проспект и др.

Торговое окружение:
Рядом расположены ночной клуб «АРМА», кафе «Бургерная Шарик», терминал «Сбербанк России», школа танцев «Группа поддержки Dynamic Ladies», барбершоп «Fresh».
Якорные арендаторы на территории: картинг «ФорзаЦентр», баскетбольный центр «Территория мяча», сквош – клуб «Москва», автосервис «Центр Мотор», event – площадка MAIN STAGE (Главная Сцена) и др.

Технические характеристики:
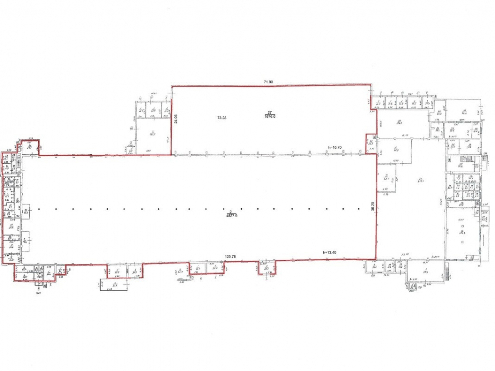
Общая площадь помещения – 7285,8 м², Отдельно стоящее здание; 1 этаж в производственном блоке и 2 этажа в АБК. Витринные окна по фасаду. Открытая планировка. Высота потолков – 11,5 м. Мокрая точка. Электрическая мощность: 1,5 МВт. Температурный режим: холодный. Помещение находится на огороженной территории. Перекрытия из мелкоразмерных ж/б плит, светоаэрациональный фонарь с одинарным остеклением, кровля мягкая рубероидная с внутренними водостоками. Требуется ремонт. Стены корпуса сделаны из силикатного кирпича, остекление фасада требует ремонта. Круглосуточная охрана территории.

Коммерческие условия:
Стоимость аренды: 3 035 750 рублей (с НДС) в месяц.
Ставка за 1 м²: 417 рублей (с НДС) в месяц.
Ставка за 1 м²: 5 000 рублей (с НДС) в год.
Форма договора: Прямой долгосрочный договор аренды.
Арендные каникулы, скидки и индивидуальные улучшения – обсуждаются.

Технические характеристики

Тип здания: Многофункциональный,С отдельным входом,Торговая

Общая площадь: 7285.8  м2

Этаж: 1

Всего этажей: 2

Электрическая мощность: 1,5 МВт

Высота потолков: 11,5 метров

Парковка: собственная на территории, более 20 м/м

Коммерческие условия

Цена в месяц: 3 035 750 RUB

ФОРМА ВЛАДЕНИЯ: ООО на НДС

карта

Расположение

Адрес: Москва, Шарикоподшипниковская улица, 13С23

Округ: Юго-Восточный административный округ

Близость метро: Дубровка (Люблинско-Дмитровская),Угрешская

Транспортная доступность: 5 минут от м. Дубровка, 10 минут от м. Волгоградский проспект

Окружение

Торговое окружение: ночной клуб «АРМА», кафе «Бургерная Шарик», терминал «Сбербанк России», школа танцев «Группа поддержки Dynamic Ladies», барбершоп «Fresh». Якорные арендаторы на территории: картинг «ФорзаЦентр», баскетбольный центр «Территория мяча», сквош – клуб «Москва», автосервис «Центр Мотор», event – площадка MAIN STAGE

Адрес:

Москва, Шарикоподшипниковская улица, 13С23

Округ:

Юго-Восточный административный округ

Близость метро:

Дубровка (Люблинско-Дмитровская),Угрешская

Транспортная доступность:

5 минут от м. Дубровка, 10 минут от м. Волгоградский проспект

карта

Торговое окружение:

ночной клуб «АРМА», кафе «Бургерная Шарик», терминал «Сбербанк России», школа танцев «Группа поддержки Dynamic Ladies», барбершоп «Fresh». Якорные арендаторы на территории: картинг «ФорзаЦентр», баскетбольный центр «Территория мяча», сквош – клуб «Москва», автосервис «Центр Мотор», event – площадка MAIN STAGE

Общая площадь:

7285.8  м2

Этаж:

1

Всего этажей:

2

Тип:

Многофункциональный,С отдельным входом,Торговая

Электрическая мощность:

1,5 МВт

Высота потолков:

11,5 метров

Парковка:

собственная на территории, более 20 м/м

ФОРМА ВЛАДЕНИЯ:

ООО на НДС

Цена в месяц:

3 035 750 RUB

Планировка

Шаклеина Юлия

Ваш брокер по работе с клиентами

Найдите лучшее место
для жизни, бизнеса, инвестиций

Оставьте свои контакты — с вами свяжется руководитель отдела для презентации нужного вам объекта

Похожие объекты