Id 139844

Москва,ЦАО, Садовая- Кудринская, д.19 стр.1/236 м2/Аренда ПСН

адрес Москва, Садовая-Кудринская улица, 19с1

Торговая

1 100 000 RUB | в месяц

(за 1 м2 — 4 661 RUB)

площадь 236.0 м2

QR код Qr код

Предлагается в аренду помещение свободного назначения в историческом центре Москвы ЦАО, первая линия по адресу: Садовая- Кудринская, д.19 стр.1. Фасадный дом на 1-й линии , отдельный вход , 10 минут пешком от метро "Маяковская".

Торговое окружение: Hartwell Hotel, Салон Красоты "Dessange", Салон Красоты "Персона",

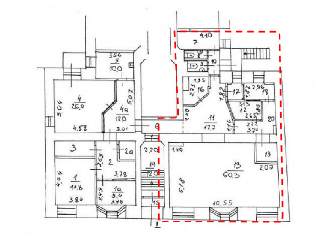
Технические параметры: 1 этаж 6-и этажного жилого дома, общей площадью 236 м2. Два входа, с первой линии и со двора, зальная планировка, высота потолков 3.3 м. Городские коммуникации. Выделенная мощность - 48 кВт. Состояние помещения: за выездом банка. Есть одно парковочное место.

Коммерческие условия:
Стоимость объекта: 1 100 000 рублей, в т.ч. НДС
Стоимость объекта за м2: 4 661 рублей, в т.ч. НДС

Технические характеристики

Тип здания: Торговая

Общая площадь: 236  м2

Этаж: 1

Всего этажей: 1

Электрическая мощность: 48

Высота потолков: 3.3

Парковка: -

Коммерческие условия

Цена в месяц: 1 100 000 RUB

ФОРМА ВЛАДЕНИЯ: -

карта

Расположение

Адрес: Москва, Садовая-Кудринская улица, 19с1

Округ: Центральный административный округ

Близость метро: Маяковская

Транспортная доступность: -

Окружение

Торговое окружение: -

Адрес:

Москва, Садовая-Кудринская улица, 19с1

Округ:

Центральный административный округ

Близость метро:

Маяковская

Транспортная доступность:

-

карта

Торговое окружение:

-

Общая площадь:

236  м2

Этаж:

1

Всего этажей:

1

Тип:

Торговая

Электрическая мощность:

48

Высота потолков:

3.3

Парковка:

-

ФОРМА ВЛАДЕНИЯ:

-

Цена в месяц:

1 100 000 RUB

Планировка

Александр Невский

Ваш брокер по работе с клиентами

Найдите лучшее место
для жизни, бизнеса, инвестиций

Оставьте свои контакты — с вами свяжется руководитель отдела для презентации нужного вам объекта

Похожие объекты