Id 139768

Проспект Андропова, 11к5 - кв.м/ Аренда помещения свободного назначения

адрес Москва, проспект Андропова, 11к5

Бизнес центр
Многофункциональный
С отдельным входом
Лофт
Офис

3 300 000 RUB | в месяц

(за 1 м2 — 2 477 RUB)

площадь 1 332.0 м2

QR код Qr код

В аренду предлагается помещение свободного назначения в новом проекте DREAM STREET.
Адрес: г. Москва, Проспект Андропова, 11к5. 7 мин пешком от метро Технопарк.

Проект DREAM STREET – расположен на набережной Москва – реки, на территории Нагатинской поймы. Прогулочная зона, вблизи Южного речного вокзала.
В ближайшее время откроется еще одна станция - «Остров Мечты».
В окружении: Парк "Остров Мечты", Южный ландшафтный парк, Северный ландшафтный парк, ЖК Dream Towers, ЖК Nagatino i-Land, ЖК Wow, Бизнес центры.
Удобная транспортная доступность: до центра Столицы 20 минут на автомобиле, до ТТК - 5 минут, до Садового кольца - 15 минут.

Технические характеристики:
Общая площадь здания– 4517 м2
Отдельные входы
МОПы и СУ с чистовой отделкой полностью оборудованы
Высота потолка от 3.5 м до 6.14 м
Эл. мощность 100 кВт на этаж

Деловая часть – 2906 м2 (ВАКАНТНА)
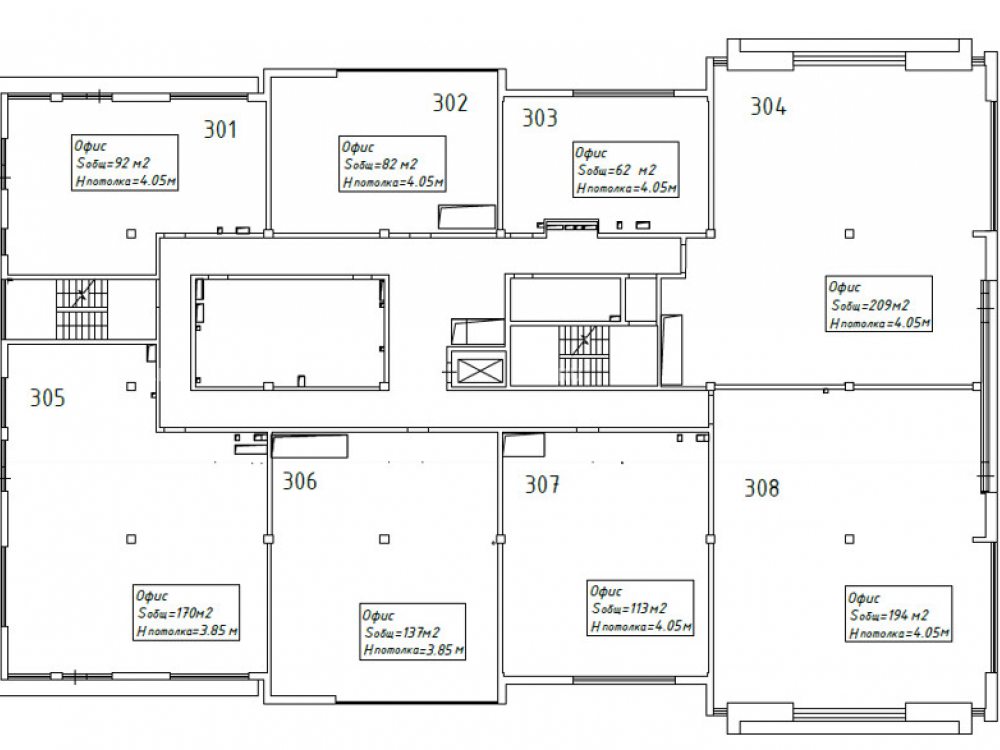
2 этаж: 1332 м2
Деление на блоки: 92м2, 82м2, 60м2 ,203м2, 139м2, 136м2, 135м2, 193м2

3 этаж: 1332 м2
Деление на блоки: 92м2, 82м2, 62м2. 209м2, 170м2, 137м2, 113м2, 194м2

По ВРИ деловую часть здания можно арендовать только под объект культуры (музей, выставочный зал, дом
культуры, художественная галерея, библиотека, кинотеатр и кинозал, театр, филармония, концертный зал, планетарий, культурный досуг)

Коммерческие условия:
Стоимость аренды: 2500 руб/м2 вкл НДС 20%
Возможно обсуждение индивидуальных условий.

блоки объекта

Пр.Андропова 11 корпус 5, /Аренда/3 этаж/113м2

113.0 м2

282 500 руб в месяц

Пр.Андропова 11 корпус 5, /Аренда/3 этаж/170м2

170.0 м2

425 000 руб в месяц

Пр.Андропова 11 корпус 5, /Аренда/3 этаж/209м2

209.0 м2

522 500 руб в месяц

Пр.Андропова 11 корпус 5, /Аренда/2 этаж/135м2

135.0 м2

337 500 руб в месяц

Пр.Андропова 11 корпус 5, /Аренда/2 этаж/193м2

193.0 м2

482 500 руб в месяц

Пр.Андропова 11 корпус 5, /Аренда/2 этаж/139м2

139.0 м2

347 500 руб в месяц

Пр.Андропова 11 корпус 5, /Аренда/2 этаж/203м2

203.0 м2

507 000 руб в месяц

Пр.Андропова 11 корпус 5, /Аренда/2 этаж/60м2

60.0 м2

150 000 руб в месяц

Пр.Андропова 11 корпус 5, /Аренда/2 этаж/82м2

82.0 м2

205 000 руб в месяц

Пр.Андропова 11 корпус 5, /Аренда/2 этаж/92м2

92.0 м2

230 руб в месяц

Технические характеристики

Тип здания: Бизнес центр,Многофункциональный,С отдельным входом,Лофт,Офис

Общая площадь: 1396  м2

Этаж: 2

Всего этажей: 3

Электрическая мощность: 100 кВт

Высота потолков: 3.5

Парковка: есть

Коммерческие условия

Цена в месяц: 3 300 000 RUB

ФОРМА ВЛАДЕНИЯ: ООО

карта

Расположение

Адрес: Москва, проспект Андропова, 11к5

Округ: Южный административный округ

Близость метро: Технопарк

Транспортная доступность: 7 мин пешком метро Технопарк, 10 мин на авто до центра

Окружение

Торговое окружение: Кафе, рестораны, магазины, услуги

Адрес:

Москва, проспект Андропова, 11к5

Округ:

Южный административный округ

Близость метро:

Технопарк

Транспортная доступность:

7 мин пешком метро Технопарк, 10 мин на авто до центра

карта

Торговое окружение:

Кафе, рестораны, магазины, услуги

Общая площадь:

1396  м2

Этаж:

2

Всего этажей:

3

Тип:

Бизнес центр,Многофункциональный,С отдельным входом,Лофт,Офис

Электрическая мощность:

100 кВт

Высота потолков:

3.5

Парковка:

есть

ФОРМА ВЛАДЕНИЯ:

ООО

Цена в месяц:

3 300 000 RUB

Планировка

Олеся Шайхисламова

Ваш брокер по работе с клиентами

Найдите лучшее место
для жизни, бизнеса, инвестиций

Оставьте свои контакты — с вами свяжется руководитель отдела для презентации нужного вам объекта

Похожие объекты