Id 13401

Москва, СЗАО, р-н Митино, Митинская ул., 36, Аренда ПСН

адрес Москва, Митинская улица, вл36

С отдельным входом
Торговая
Общепит

600 000 RUB | в месяц

(за 1 м2 — 4 082 RUB)

площадь 147.0 м2

QR код Qr код

Предлагается в аренду торговое помещение на первой линии домов по адресу: Москва, СЗАО, р-н Митино, Митинская ул., 36.
Менее 1 минуты пешком (50 метров) от метро "Митино". Густонаселенный жилой массив с плотной многоэтажной застройкой. Высокий пешеходный и автомобильный трафик. Развитое торговое окружение и инфраструктура.

Технические условия:
Первый этаж. Отдельный вход. Первая линия. Место для рекламной вывески
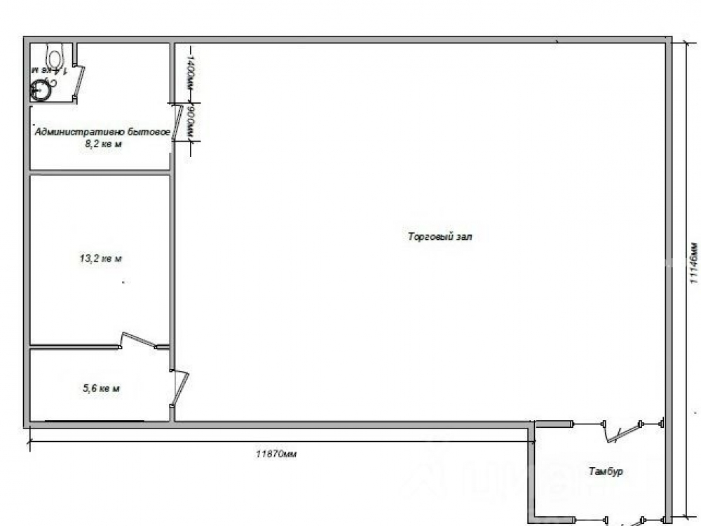
Обшщая площадь 147 кв.м. Площадь торгового зала 110 квм. Приточная вентиляция и кондиционирование.
Мокрая точка.Высота потолков - 3 м. Выделенная электрическая мощность 20 кВт.

Коммерческие условия:
Ставка аренды - 600 000 рублей в месяц.
Ставка аренды за 1 кв.м в месяц 4 081 рублей.
Обеспечительный платеж - 1 мес.

Технические характеристики

Тип здания: С отдельным входом,Торговая,Общепит

Общая площадь: 147  м2

Этаж: 1

Всего этажей: 17

Электрическая мощность: 20

Высота потолков: 3

Парковка: наземная

Коммерческие условия

Цена в месяц: 600 000 RUB

ФОРМА ВЛАДЕНИЯ: ИП

карта

Расположение

Адрес: Москва, Митинская улица, вл36

Округ: Северо-Западный административный округ

Близость метро: Митино

Транспортная доступность: Менее 1 минуты пешком (50 метров) от метро

Окружение

Торговое окружение: Россельхозбанк, ВкусВилл, Здравсити, ПВЗ и другие

Адрес:

Москва, Митинская улица, вл36

Округ:

Северо-Западный административный округ

Близость метро:

Митино

Транспортная доступность:

Менее 1 минуты пешком (50 метров) от метро

карта

Торговое окружение:

Россельхозбанк, ВкусВилл, Здравсити, ПВЗ и другие

Общая площадь:

147  м2

Этаж:

1

Всего этажей:

17

Тип:

С отдельным входом,Торговая,Общепит

Электрическая мощность:

20

Высота потолков:

3

Парковка:

наземная

ФОРМА ВЛАДЕНИЯ:

ИП

Цена в месяц:

600 000 RUB

Планировка

Мурат

Ваш брокер по работе с клиентами

Найдите лучшее место
для жизни, бизнеса, инвестиций

Оставьте свои контакты — с вами свяжется руководитель отдела для презентации нужного вам объекта

Похожие объекты